Bản Thiết Kế Phòng Ngủ 10m2 Đẹp Và Tối Ưu Công Năng Xu Hướng 2026

Việc sở hữu một bản thiết kế phòng ngủ hoàn thiện cho diện tích 10m2 đòi hỏi sự tính toán kỹ lưỡng về mặt công năng và thẩm mỹ. Trong bối cảnh đô thị hóa năm 2026, các giải pháp nội thất thông minh, tối ưu diện tích, và phong cách tối giản trở thành chìa khóa giúp tạo nên không gian đa năng lý tưởng. Bài viết này cung cấp các phân tích chuyên sâu giúp bạn biến căn phòng nhỏ hẹp thành nơi nghỉ ngơi thư giãn tuyệt đối.

Chiến lược bố trí mặt bằng cho diện tích nhỏ hẹp

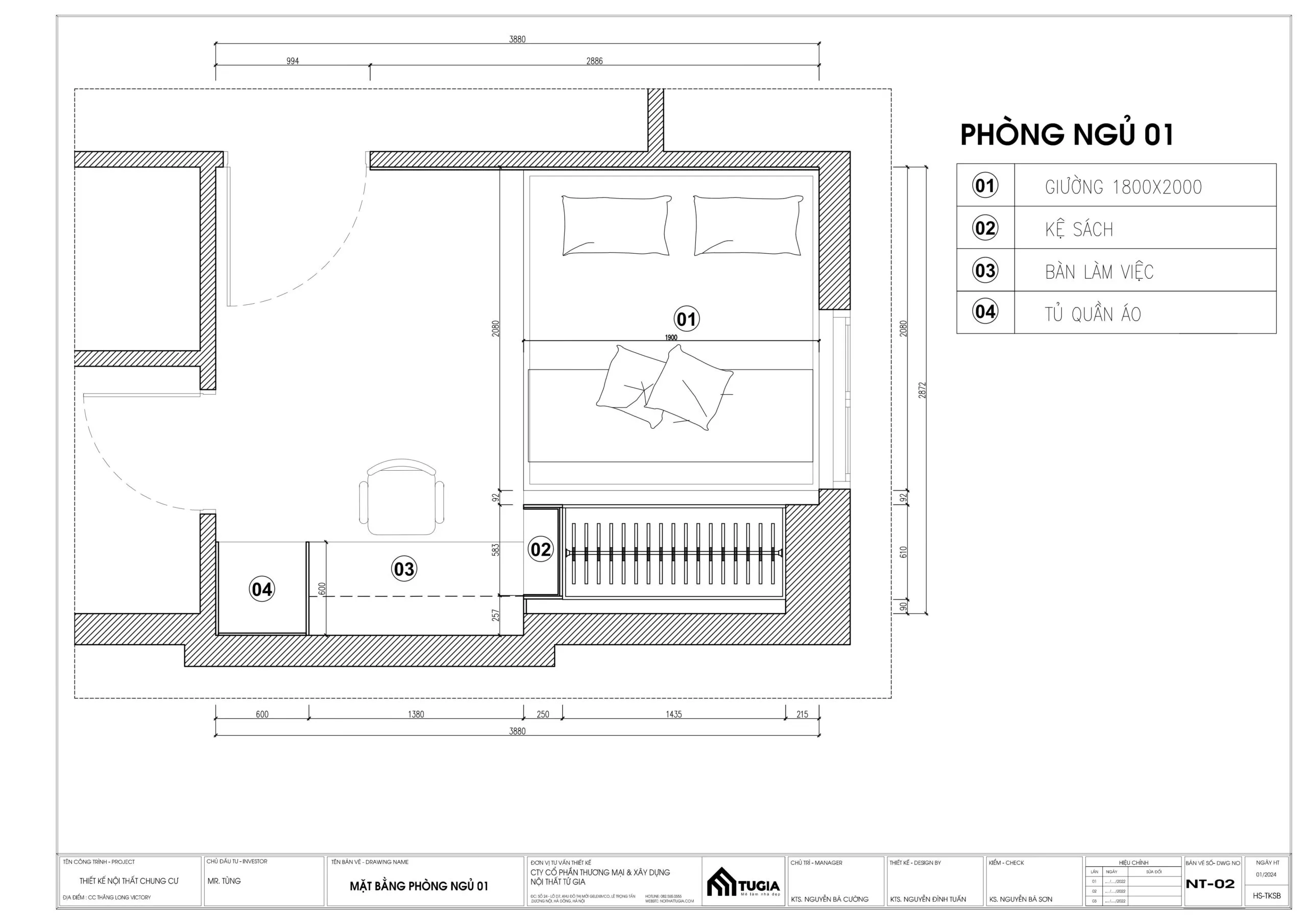
Bố trí mặt bằng hợp lý là bước tiên quyết để vượt qua giới hạn về diện tích trong các căn căn hộ hiện đại. Một bản thiết kế phòng ngủ chuẩn mực cần ưu tiên luồng giao thông thông suốt và khả năng lưu trữ tích hợp dưới các hệ tủ kịch trần.

Bản thiết kế phòng ngủ 10m2 đầy đủ tiện nghi với hệ tủ âm tường và giường bục hiện đạiBản thiết kế phòng ngủ 10m2 đầy đủ tiện nghi với hệ tủ âm tường và giường bục hiện đại

Thực tế tại các dự án thiết kế nội thất chung cư 45m2 phổ biến năm 2026 cho thấy việc đẩy toàn bộ nội thất sát tường giúp nới rộng khoảng trống ở trung tâm. Thay vì sử dụng tủ rời, gia chủ nên chọn hệ tủ âm tường kết hợp kệ trang trí để giảm bớt sự nặng nề về thị giác mà vẫn đảm bảo được phong thủy phòng ngủ hài hòa.

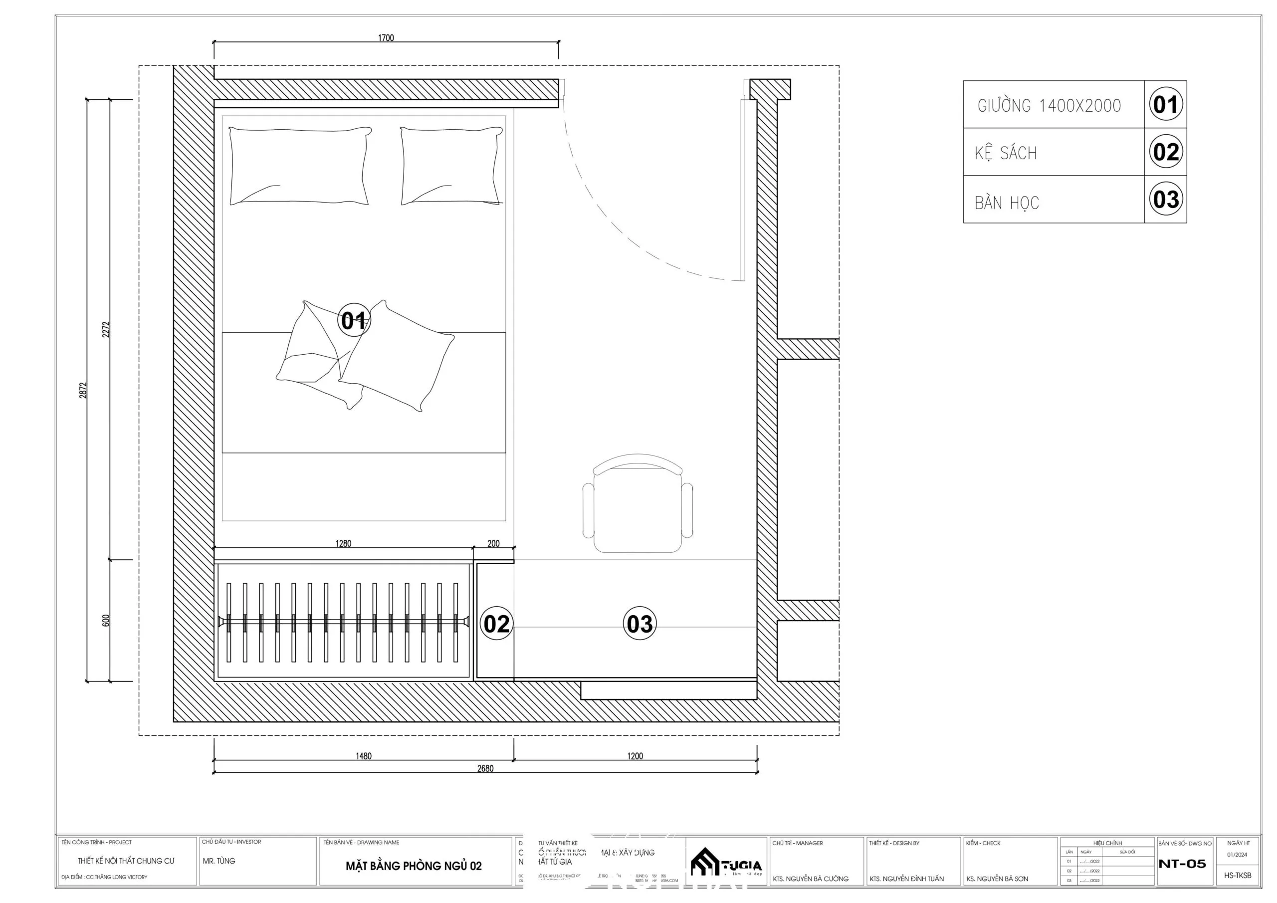
Các giải pháp bản thiết kế phòng ngủ thông minh theo nhu cầu

Tùy thuộc vào đối tượng sử dụng là cá nhân hay cặp vợ chồng, phương án thiết kế sẽ có những thay đổi trọng tâm về tiện ích. Một bản thiết kế phòng ngủ thành công phải cân bằng được giữa thói quen sinh hoạt cá nhân và các nguyên lý công thái học cơ bản.

Đọc thêm  [Mẫu] Thiết kế nhà cấp 4 ngang 4m dài 12m tối ưu diện tích 2026

Bản thiết kế phòng ngủ tối giản sử dụng giường bục thông minh tích hợp ngăn kéo chứa đồBản thiết kế phòng ngủ tối giản sử dụng giường bục thông minh tích hợp ngăn kéo chứa đồ

Đối với cặp đôi, một phương án thiết kế phòng ngủ nhỏ cho vợ chồng tinh tế sẽ đặt sự cân xứng và lãng mạn lên hàng đầu thông qua hệ thống ánh sáng tự nhiên và đèn trang trí âm trần. Ngược lại, phòng ngủ cá nhân thường tập trung vào góc làm việc tích hợp ngay cạnh đầu giường để tối đa hóa hiệu suất sử dụng trên cùng một mặt bằng diện tích.

Phương án bố trí nội thất theo trục dọc

Thiết kế theo trục dọc giúp đánh lừa thị giác về chiều sâu, tạo cảm giác căn phòng dài và thoáng hơn thực tế. Trong bản thiết kế phòng ngủ loại này, giường ngủ thường được đặt sát góc tường phía gần cửa sổ để đón nhận nguồn năng lượng từ bên ngoài.

Bố trí bản thiết kế phòng ngủ theo chiều dọc giúp tạo luồng di chuyển thông thoáng trong phòngBố trí bản thiết kế phòng ngủ theo chiều dọc giúp tạo luồng di chuyển thông thoáng trong phòng

Các vật dụng như bàn trang điểm hoặc bàn làm việc sẽ được nối dài liên tục với hệ giường bục. Cách làm này không chỉ tạo sự đồng bộ về vật liệu mà còn loại bỏ hoàn toàn các “góc chết” tích tụ bụi bẩn, giúp công việc vệ sinh hàng ngày trở nên đơn giản hơn.

Thiết kế tích hợp ban công và ánh sáng tự nhiên

Ánh sáng mặt trời là yếu tố sống còn giúp cải thiện sức khỏe tinh thần và làm bừng sáng không gian eo hẹp. Một bản thiết kế phòng ngủ có ban công mang đến sự kết nối mật thiết với thiên nhiên, phá bỏ rào cản bức bối của những bức tường bê tông truyền thống.

Đọc thêm  Thiết kế website Thủ Đức – Nâng tầm thương hiệu doanh nghiệp trong kỷ nguyên số

Bản thiết kế phòng ngủ có ban công giúp đón ánh sáng tự nhiên và luân chuyển không khí tốtBản thiết kế phòng ngủ có ban công giúp đón ánh sáng tự nhiên và luân chuyển không khí tốt

Gia chủ nên sử dụng rèm vải hai lớp để điều tiết cường độ sáng vào các thời điểm khác nhau trong ngày. Góc ban công nhỏ có thể tận dụng đặt thêm một vài tiểu cảnh cây xanh hoặc ghế thư giãn loại nhỏ để tạo điểm nhấn xanh mát và thư thái.

Ứng dụng giường bục và nội thất đa năng cải thiện diện tích

Giường bục hiện nay là giải pháp “cứu cánh” hoàn hảo nhất cho diện tích 10m2 nhờ khả năng lưu trữ khổng lồ phía dưỡi. Việc lựa chọn bản thiết kế phòng ngủ sử dụng giường bục giúp thay thế hoàn toàn nhu cầu về một chiếc tủ kho hay tủ quần áo cồng kềnh thường thấy.

⚠️ Lưu ý: Khi thi công giường bục, cần đảm bảo hệ khung gỗ cơ sở được xử lý chống ẩm và chịu lực đạt chuẩn để kéo dài tuổi thọ sử dụng cho toàn bộ công trình.

Mẫu bản thiết kế phòng ngủ 10m2 hiện đại với sự phối hợp màu sắc trung tính sang trọngMẫu bản thiết kế phòng ngủ 10m2 hiện đại với sự phối hợp màu sắc trung tính sang trọng

Phần sàn cao của bục thường được thiết kế các ngăn kéo trượt mượt mà bằng hệ ray giảm chấn. Đây là nơi lý tưởng để cất giữ chăn màn, quần áo trái mùa hoặc các vật dụng cá nhân ít khi dùng đến, giúp bề mặt sàn phòng luôn luôn gọn gàng và ngăn nắp.

Nguyên tắc lựa chọn phối màu và vật liệu thịnh hành năm 2026

Màu sắc quyết định đến 70% cảm nhận về không gian khi bước vào một căn phòng nhỏ. Trong mọi bản thiết kế phòng ngủ 10m2, các gam màu trung tính như trắng kem, xám nhạt hoặc vân gỗ sáng màu luôn được các kiến trúc sư ưu tiên hàng đầu.

Bản thiết kế phòng ngủ sử dụng tông màu sáng giúp tăng hiệu ứng phản xạ ánh sáng tối đaBản thiết kế phòng ngủ sử dụng tông màu sáng giúp tăng hiệu ứng phản xạ ánh sáng tối đa

Bên cạnh màu sắc, việc ứng dụng các vật liệu phản xạ nhẹ như kính cường lực hoặc gương trang trí cũng giúp nhân đôi không gian thực tế. Tuy nhiên, gia chủ cần lưu ý tránh đặt gương lớn trực diện với giường ngủ để đảm bảo giấc ngủ sâu và yên bình nhất.

Đọc thêm  Thiết kế mỹ thuật số trong kiến trúc 2026: Đỉnh cao 3D

Dịch vụ tư vấn chuyên nghiệp tại Doctor Nội Thất

Để sở hữu một bản thiết kế phòng ngủ vừa vặn và mang đậm dấu ấn cá nhân, việc tìm kiếm sự hỗ trợ từ các chuyên gia thiết kế nội thất là thực sự cần thiết. Doctor Nội Thất với hơn 10 năm kinh nghiệm cam kết mang đến những giải pháp đột phá và tối ưu chi phí thi công.

Đội ngũ kiến trúc sư triển khai bản thiết kế phòng ngủ dựa trên khảo sát thực tế chuyên sâuĐội ngũ kiến trúc sư triển khai bản thiết kế phòng ngủ dựa trên khảo sát thực tế chuyên sâu

Chúng tôi không chỉ cung cấp bản vẽ kỹ thuật mà còn tư vấn chi tiết về việc lựa chọn vật liệu bền vững và cách bài trí chuẩn phong thủy. Mỗi mét vuông trong phòng đều được tận dụng tối đa nhằm đem lại sự hài lòng và tiện nghi vượt mong đợi cho khách hàng.

Tiêu chí đánh giá Nội thất truyền thống Giải pháp từ Doctor Nội Thất
Tối ưu diện tích Trung bình Tối đa (trên 95% diện tích)
Tính thẩm mỹ Rời rạc, thiếu đồng bộ Đồng nhất, hiện đại theo xu hướng
Khả năng lưu trữ Hạn chế, dễ lộn xộn Tích hợp đa năng, thông minh

Sự kết hợp nhuần nhuyễn giữa tư duy sáng tạo nghệ thuật và nhu cầu thực tế sẽ tạo nên một bản thiết kế phòng ngủ hoàn hảo. Đây chính là nền tảng quan trọng giúp nâng cao chất lượng giấc ngủ và bồi đắp nguồn năng lượng tích cực cho cuộc sống trọn vẹn tại ngôi nhà bạn.

Last Updated on 20/03/2026 by Tuấn Trình

Để lại một bình luận

Email của bạn sẽ không được hiển thị công khai. Các trường bắt buộc được đánh dấu *

Cược m88 asia hàng đầu Châu Á