Trong kỷ nguyên công nghiệp 4.0, sự phát triển vượt bậc của công nghệ yêu cầu quy trình sản xuất phải cực kỳ chính xác. Việc sử dụng thành thạo các phần mềm thiết kế cơ khí giúp doanh nghiệp tối ưu hóa chi phí và rút ngắn thời gian. Bài viết này cung cấp cái nhìn chuyên sâu về những công cụ hỗ trợ kỹ thuật mạnh mẽ nhất thị trường hiện nay. Những ứng dụng này không chỉ tạo ra bản vẽ mà còn mô phỏng thực tế giúp giảm thiểu sai sót kỹ thuật.
1. AutoCAD: Nền tảng của các phần mềm thiết kế cơ khí
AutoCAD từ lâu đã trở thành tiêu chuẩn vàng trong lĩnh vực vẽ kỹ thuật 2D và thiết kế mô hình 3D cơ bản. Phiên bản 2026 mang đến khả năng tích hợp trí tuệ nhân tạo để tự động hóa các thao tác lặp lại nhàm chán nhất. Công cụ này cho phép kỹ sư tạo ra các bản vẽ chi tiết nhanh chóng với độ chính xác cao đến từng milimet.
TOP 10 phần mềm thiết kế bản vẽ kỹ thuật cơ khí phổ biến nhất thế giới
Khả năng tương thích linh hoạt của AutoCAD giúp việc trao đổi dữ liệu giữa các bộ phận trở nên vô cùng dễ dàng. Các tính năng như cộng tác trên đám mây giúp đội ngũ thiết kế làm việc đồng bộ từ xa hiệu quả vượt trội. Mặc dù xử lý bảng biểu chưa mạnh nhưng khả năng tùy biến lệnh tắt vẫn là ưu điểm lớn cho chuyên gia.
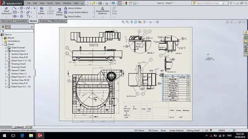
2. SolidWorks: Giải pháp thiết kế 3D tối ưu cho kỹ sư
SolidWorks hiện là một trong các phần mềm thiết kế cơ khí phổ biến nhất nhờ giao diện trực quan và cực kỳ thân thiện. Công nghệ mô hình hóa tham số cho phép thay đổi kích thước linh hoạt mà không cần phải thực hiện vẽ lại từ đầu. Hệ thống giúp quản lý hiệu quả các bộ lắp ráp lớn có hàng nghìn chi tiết phức tạp trong thời gian rất ngắn.
Solid WorksSolidWorks là một phần mềm thiết kế 3D gốc dựa trên hệ thống Windows.
Khả năng phân tích lực và mô phỏng động học của SolidWorks giúp dự đoán chính xác độ bền của sản phẩm cơ khí. Doanh nghiệp có thể giảm thiểu chi phí làm mẫu thử bằng cách kiểm tra lỗi trên môi trường ảo trước khi sản xuất. Đây là lựa chọn hàng đầu cho các dự án thiết kế máy móc công nghiệp và thiết bị gia dụng hiện đại.
3. CATIA: Đỉnh cao trong hằng hà sa số các phần mềm thiết kế cơ khí
CATIA được biết đến là giải pháp cao cấp nhất dành cho ngành hàng không, vũ trụ và sản xuất ô tô chuyên nghiệp. Phần mềm này sở hữu khả năng xử lý các bề mặt phức tạp với độ mịn và tính thẩm mỹ đạt chuẩn cao nhất. Cấu trúc cây thông minh của hệ thống giúp kỹ sư dễ dàng kiểm soát mọi thay đổi trong quá trình phát triển dự án.
CATIA cung cấp khả năng thiết kế hoàn chỉnh
Sự kết hợp giữa thiết kế, phân tích kỹ thuật và sản xuất trong CATIA tạo nên một quy trình khép kín hoàn hảo. Năm 2026, nền tảng này chú trọng vào việc tối ưu hóa khối lượng vật liệu giúp bảo vệ môi trường và tiết kiệm. Đây thực sự là công cụ không thể thiếu đối với các tập đoàn công nghiệp đa quốc gia có quy mô lớn.
4. Autodesk Moldflow: Chuyên gia phân tích dòng chảy nhựa
Moldflow đóng vai trò cực kỳ quan trọng trong việc thiết kế khuôn mẫu và tối ưu hóa quy trình ép phun nhựa hiện nay. Khi sử dụng các phần mềm thiết kế cơ khí chuyên biệt này, kỹ sư có thể dự đoán được các lỗi tiềm ẩn. Hiện tượng rỗ khí, cong vênh hay vết hàn sẽ được phát hiện sớm giúp tiết kiệm hàng tỷ đồng kinh phí sửa lỗi.
Autodesk MoldflowAutodesk Moldflow cung cấp giải pháp mô phỏng dòng chảy nhựa
Hệ thống cung cấp hai công cụ chính là AMA và AMI dành cho các cấp độ phân tích và mô phỏng khác nhau. AMA hỗ trợ nhanh chóng các quyết định thiết kế ban đầu trong khi AMI mang lại cái nhìn chuyên sâu về kỹ thuật. Việc tối ưu hóa hệ thống làm nguội giúp rút ngắn chu kỳ sản xuất và nâng cao chất lượng sản phẩm cuối cùng.
5. Bảng giá tham khảo các phần mềm thiết kế cơ khí năm 2026
Dưới đây là bảng dự toán chi phí bản quyền giúp các doanh nghiệp và cá nhân có sự chuẩn bị tài chính tốt:
| Tên Phần Mềm | Phân Khúc Ứng Dụng | Mức Giá Thuê Bao/Năm (Tham khảo) | Đối Tượng Phù Hợp |
|---|---|---|---|
| AutoCAD | Vẽ kỹ thuật tổng hợp | 45.000.000 – 55.000.000 VNĐ | Kỹ sư xây dựng, cơ khí |
| SolidWorks | Thiết kế máy 3D | 80.000.000 – 120.000.000 VNĐ | Doanh nghiệp sản xuất máy |
| CATIA | Hàng không & Ô tô | 250.000.000 – 400.000.000 VNĐ | Tập đoàn công nghệ cao |
| NX (Siemens) | Toàn diện CAD/CAM/CAE | 150.000.000 – 220.000.000 VNĐ | Cơ khí chính xác, khuôn mẫu |
| Mastercam | Lập trình gia công CNC | 90.000.000 – 150.000.000 VNĐ | Xưởng gia công cơ khí |
Lưu ý: Đơn giá trên chỉ mang tính chất tham khảo tại thời điểm năm 2026 và có thể thay đổi tùy vùng.
6. Pro/Engineer (Creo): Tiên phong trong công nghệ thiết kế tham số
Pro/Engineer được giới chuyên môn đánh giá cao nhờ khả năng đồng bộ dữ liệu mạnh mẽ xuyên suốt toàn bộ dự án thiết kế. Mọi thay đổi ở bản vẽ chi tiết sẽ tự động cập nhật vào mô hình lắp ráp và hồ sơ sản xuất liên quan. Điều này giúp loại bỏ hoàn toàn các sai sót do thiếu sót thông tin giữa các giai đoạn thiết kế và thi công.
Phần mềm Pro / Engineer được sử dụng rộng rãi trong thiết kế sản phẩm
Tại thị trường Việt Nam, Creo vẫn giữ vững vị thế trong các lĩnh vực thiết kế sản phẩm tiêu dùng và máy công cụ. Việc học và làm chủ công cụ này đòi hỏi tư duy logic cao về kết cấu khung và liên kết cơ khí bền vững. Khả năng mô phỏng động lực học giúp sản phẩm vận hành ổn định trong các điều kiện khắc nghiệt của thực tế sản xuất.
7. Unigraphics NX: Giải pháp từ Siemens cho các phần mềm thiết kế cơ khí
Unigraphics NX cung cấp một môi trường làm việc kỹ thuật số linh hoạt cho các dự án phức tạp nhất về mặt hình học. Với kiến trúc mở, NX cho phép người dùng can thiệp sâu vào hệ thống để tùy biến các tính năng theo nhu cầu. Phần mềm này xử lý cực tốt các bài toán về truyền nhiệt và thông gió trong các hệ thống máy móc công nghiệp.

Unigraphics NX cung cấp giải pháp kỹ thuật sản phẩm kỹ thuật số
Năm 2026, NX tích hợp sâu các tiêu chuẩn QCVN và tiêu chuẩn quốc tế giúp sản phẩm dễ dàng đạt các chứng chỉ. Khả năng mô phỏng quá trình lắp ráp ảo giúp phát hiện can thiệp vật lý giữa các chi tiết máy một cách chính xác. Đây là một trong các phần mềm thiết kế cơ khí mạnh mẽ nhất về khả năng kết nối giữa CAD và CAM.
8. Mastercam: Ông vua trong lĩnh vực lập trình gia công CNC
Mastercam là lựa chọn số một của các xưởng cơ khí chính xác khi thực hiện lập trình cho máy phay và tiện CNC. Giao diện trực quan giúp kỹ sư vận hành máy dễ dàng tạo ra các đường chạy dao tối ưu để tiết kiệm vật liệu. Khả năng kiểm tra va chạm của phần mềm đảm bảo an toàn tuyệt đối cho thiết bị và người vận hành khi sản xuất.

Mastercam cung cấp môi trường lý tưởng để thiết kế hình dạng các bộ phận
Năm 2026, các thuật toán gia công tốc độ cao trong Mastercam giúp giảm thiểu thời gian chạy máy xuống mức thấp nhất có thể. Sự linh hoạt trong việc xử lý dữ liệu từ các hệ thống CAD khác khiến nó trở thành công cụ kết nối cực tốt. Các doanh nghiệp nhỏ và vừa thường ưu tiên đầu tư Mastercam để nâng cao năng lực cạnh tranh trên thị trường gia công.
9. Cimatron: Giải pháp chuyên biệt cho ngành thiết kế khuôn mẫu
Cimatron sở hữu bộ công cụ đặc thù dành riêng cho việc thiết kế khuôn ép nhựa và khuôn dập tấm một cách nhanh chóng. Quy trình tự động hóa thiết kế mặt phân khuôn giúp rút ngắn đáng kể thời gian chuẩn bị sản xuất cho các đơn hàng. Khi nghiên cứu các phần mềm thiết kế cơ khí, các chuyên gia luôn đánh giá cao khả năng xử lý bề mặt phức tạp của Cimatron.

Cimatron cung cấp giải pháp CAD / CAM tích hợp cho sản xuất
Hệ thống hỗ trợ đắc lực cho các đơn vị sản xuất linh kiện ô tô, điện tử và thiết bị y tế đòi hỏi tinh xảo. Phiên bản mới mang lại khả năng quản lý dự án tập trung giúp đội ngũ thiết kế phối hợp hiệu quả trong môi trường áp lực. Sự chính xác trong việc tính toán độ co ngót vật liệu giúp khuôn mẫu sản xuất ra đạt chất lượng hoàn hảo ngay lần đầu.
10. Delcam và Edgecam: Sự kết hợp hoàn mỹ cho sản xuất hiện đại
Delcam nổi tiếng với các phần mềm như PowerMill giúp xử lý các chương trình gia công 5 trục tinh xảo nhất hiện nay. Các tính năng kiểm soát độ bóng bề mặt giúp sản phẩm sau khi gia công đạt đến trình độ thẩm mỹ như mong đợi. Trong khi đó, Edgecam tập trung vào sự thông minh và đơn giản hóa quy trình lập trình cho các máy gia công phức hợp.
Delcam là công ty phần mềm CAD / CAM chuyên nghiệp hàng đầu thế giới
Sử dụng các phần mềm thiết kế cơ khí này giúp doanh nghiệp tối ưu hóa hiệu suất thiết bị hiện có tại các nhà xưởng. Việc cập nhật đường chạy dao tự động khi thay đổi thiết kế giúp quy trình sản xuất diễn ra liên tục không bị gián đoạn. Đây là bộ đôi giải pháp tuyệt vời cho các dự án yêu cầu độ chính xác cực kỳ cao trong lĩnh vực y tế.
11. Các xu hướng và lưu ý khi chọn mua các phần mềm thiết kế cơ khí
Việc lựa chọn công cụ phù hợp phụ thuộc rất nhiều vào mục tiêu sản xuất và ngân sách thực tế của từng doanh nghiệp. Một sai lầm phổ biến là mua phần mềm quá cao cấp nhưng chỉ sử dụng những tính năng cơ bản gây lãng phí lớn. Doanh nghiệp cần đánh giá kỹ năng lực của đội ngũ kỹ sư trước khi quyết định đầu tư vào các hệ thống phức tạp.
Năm 2026, xu hướng chuyển dịch lên nền tảng đám mây giúp việc truy cập dữ liệu thiết kế trở nên linh hoạt và bảo mật. Trí tuệ nhân tạo sẽ hỗ trợ tối ưu hóa kết cấu khung giúp giảm trọng lượng nhưng vẫn đảm bảo khả năng chịu lực. Các tiêu chuẩn về ánh sáng và thông gió tự nhiên cũng được tích hợp sâu trong các mô phỏng môi trường làm việc.
Edgecam có thể được tích hợp với dữ liệu phần mềm CAD chính thống
Đảm bảo bản quyền hợp pháp cho các phần mềm thiết kế cơ khí là yêu cầu bắt buộc để nhận được sự hỗ trợ kỹ thuật. Các nhà cung cấp chính hãng luôn đưa ra lộ trình nâng cấp và đào tạo giúp nhân viên làm chủ công nghệ mới. Việc tuân thủ QCVN trong thiết kế giúp sản phẩm nhanh chóng được thị trường chấp nhận và đảm bảo an toàn vận hành cao.
Sử dụng thành thạo một trong những ứng dụng này sẽ mở ra nhiều cơ hội nghề nghiệp và phát triển cho các kỹ sư. Trong tương lai, sự giao thoa giữa cơ khí và kiến trúc sẽ ngày càng rõ nét hơn trong các công trình hiện đại. Đầu tư đúng mức vào công nghệ chính là chìa khóa giúp doanh nghiệp bứt phá và dẫn đầu trong mọi lĩnh vực sản xuất.
Hy vọng danh sách các phần mềm thiết kế cơ khí trên giúp bạn tìm ra giải pháp phù hợp nhất cho công việc. Với sự am hiểu về kỹ thuật và kinh nghiệm thực tế, bạn sẽ tạo ra những sản phẩm chất lượng vượt trội nhất. Hãy bắt đầu hành trình chinh phục những bản vẽ kỹ thuật đầy sáng tạo và chuẩn xác ngay từ hôm nay bạn nhé.
Last Updated on 03/03/2026 by Tuấn Trình

Mình là Tuấn Trình nhân viên tại Công ty Cổ phần Bao bì Xi măng Hải Phòng với 7 năm kinh nghiệm. Rất vui vì có thể hỗ trợ bạn.
