Việc chuẩn bị kế hoạch tài chính và xác định chi phí xây nhà 2 tầng là bước khởi đầu quan trọng bậc nhất giúp gia chủ hiện thực hóa tổ ấm mơ ước một cách ổn định nhất. Trong bối cảnh ngành xây dựng năm 2026 có nhiều biến động về đơn vị giá vật liệu và nhân công, việc nắm bắt bảng giá chi tiết không chỉ giúp tối ưu nguồn vốn mà còn đảm bảo chất lượng kết cấu công trình bền vững theo thời gian.
Bảng giá xây dựng nhà 2 tầng trọn gói tại MHOME
1. Phân tích thị trường và chi phí xây nhà 2 tầng năm 2026
Bước sang năm 2026, các tiêu chuẩn về kiến trúc xanh và công năng sử dụng thông minh trở thành yêu cầu tiên quyết. Chi phí xây nhà 2 tầng hiện nay thường bao gồm ba phần chính: thiết kế kiến trúc, thi công phần thô (kết cấu khung) và hoàn thiện nội thất. Sự khác biệt về diện tích, địa thế đất (móng đơn hay móng băng) và phong cách kiến trúc (hiện đại, tối giản hay tân cổ điển) sẽ quyết định tổng ngân sách đầu tư.
Dưới đây là một cuộc khảo sát tổng quát về đơn giá xây dựng trung bình, được tính toán dựa trên chỉ số giá tiêu dùng và biến động thị trường ngành xây dựng dự kiến cho năm 2026.
1.1. Bảng giá thiết kế kiến trúc và nội thất 2026
Thiết kế là linh hồn của ngôi nhà. Một bản vẽ kỹ thuật chuẩn xác giúp tránh được lỗi kết cấu và lãng phí vật tư.
| Diện tích thiết kế (m2) | Thiết kế kiến trúc (VNĐ/m2) | Thiết kế nội thất (VNĐ/m2) | Thiết kế trọn gói (VNĐ/m2) | Thiết kế cao cấp (3D Video) |
|---|---|---|---|---|
| 200 – 400 m2 | 165.000 | 185.000 | 350.000 | 385.000 |
| 400 – 600 m2 | 145.000 | 175.000 | 320.000 | 355.000 |
| > 600 m2 | 135.000 | 165.000 | 300.000 | 330.000 |
Lưu ý: Đơn giá trên mang tính tham khảo, có thể thay đổi tùy thuộc vào độ phức tạp của phong cách kiến trúc.
2. Chi tiết đơn giá thi công nhà 2 tầng mới nhất
Khi tính toán chi phí xây nhà 2 tầng, gia chủ cần phân biệt rõ giữa thi công phần thô và xây dựng trọn gói (chìa khóa trao tay). Thi công phần thô bao gồm móng, khung, sàn, tường xây và hệ thống ống điện nước âm tường. Trong khi đó, trọn gói sẽ bao gồm cả phần hoàn thiện như sơn nước, gạch ốp lát, thiết bị vệ sinh và cửa.
2.1. Đơn giá thi công phần thô và nhân công hoàn thiện
Đây là lựa chọn dành cho những gia chủ muốn tự mình lựa chọn vật tư hoàn thiện theo sở thích cá nhân.
| Diện tích sàn | Gói Tiêu Chuẩn (VNĐ/m2) | Gói Nâng Cao (VNĐ/m2) | Gói Cao Cấp (VNĐ/m2) |
|---|---|---|---|
| Từ 300m2 trở lên | 3.750.000 | 4.150.000 | 4.450.000 |
| Dưới 300m2 | Khảo sát thực tế | Khảo sát thực tế | Khảo sát thực tế |
2.2. Chi phí xây nhà 2 tầng trọn gói – Chìa khóa trao tay
Gói dịch vụ này giúp tiết kiệm thời gian và giảm thiểu rủi ro phát sinh cho gia chủ. Mọi hạng mục từ xin phép xây dựng đến hoàn thiện đều được nhà thầu đảm nhiệm.
| Diện tích xây dựng | Gói Tiêu Chuẩn (VNĐ/m2) | Gói Nâng Cao (VNĐ/m2) | Gói Cao Cấp (VNĐ/m2) |
|---|---|---|---|
| ≥ 300m2 | 6.150.000 | 6.550.000 | 6.850.000 |
| < 300m2 | Báo giá theo hồ sơ | Báo giá theo hồ sơ | Báo giá theo hồ sơ |
Trong dự toán chi phí xây nhà 2 tầng, các đơn vị uy tín thường miễn phí 100% bản vẽ xin giấy phép xây dựng và tư vấn kiến trúc khi ký hợp đồng thi công trọn gói.
3. Cách tính diện tích tích xây dựng nhà 2 tầng chuẩn kỹ thuật
Sai lầm phổ biến nhất của gia chủ là chỉ lấy diện tích sàn nhân với đơn giá. Trong thực tế, chi phí xây nhà 2 tầng phải bao gồm cả phần móng, mái và các không gian ngoài trời (sân thượng, ban công). Tại Việt Nam, phương pháp tính hệ số diện tích sàn (m2) là tiêu chuẩn chính xác nhất để dự toán.
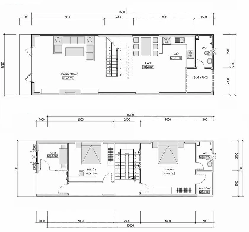
Ví dụ cụ thể: Nhà phố 2 tầng diện tích 5x15m (Lô đất 5x20m)
- Móng đơn: 40% diện tích = 30m2.
- Tầng trệt: 100% diện tích = 75m2.
- Tầng 2 (Lầu 1): 100% diện tích = 75m2.
- Sân thượng (mái BTCT): 50% diện tích = 37.5m2.
- Tổng diện tích xây dựng: 217.5m2.
Mặt bằng nhà 2 tầng 5×15 |
Chi phí xây nhà 2 tầng 5×15 |
|---|---|
| Mặt bằng công năng 5x15m | Phối cảnh kiến trúc nhà 2 tầng |
Dựa vào diện tích 217.5m2, chi phí xây nhà 2 tầng ước tính như sau:
- Gói thi công thô: 217.5 x 3.750.000 = 815.625.000 VNĐ.
- Gói trọn gói: 217.5 x 6.150.000 = 1.337.625.000 VNĐ.
Tương tự, với các kích thước mặt tiền 4m, chúng ta có dự toán tham khảo:
- Nhà 4x12m (2 tầng): ~ 850 triệu đồng trọn gói.
- Nhà 4x15m (2 tầng): ~ 1,1 tỷ đồng trọn gói.
- Nhà 4x18m (2 tầng): ~ 1,3 tỷ đồng trọn gói.
4. Danh mục vật tư quyết định chất lượng và chi phí xây dựng
Vật tư là yếu tố then chốt ảnh hưởng đến giá thành. Trong bối cảnh năm 2026, các tiêu chuẩn vật liệu như QCVN (Quy chuẩn Việt Nam) về chịu lực và độ bền nhiệt được thắt chặt. Việc lựa chọn vật liệu trong dự toán chi phí xây nhà 2 tầng cần có sự phối hợp giữa độ bền và tính thẩm mỹ.
4.1. Vật tư phần thô (Cốt lõi công trình)
| Loại vật liệu | Gói Tiêu Chuẩn | Gói Nâng Cao | Gói Cao Cấp |
|---|---|---|---|
| Thép | Việt Nhật CB3 hoặc Pomina | Việt Nhật CB4 / Hòa Phát | Việt Nhật CB4 / Thép Posco |
| Xi măng | Insee (Sao Mai) / Hà Tiên | Insee đa dụng | Insee trộn sẵn cao cấp |
| Gạch | Tuynel Bình Dương | Tuynel Đồng Nai | Gạch không nung / Block |
| Đá | Đá xanh 1×2 Đồng Nai | Đá xanh Hóa An | Đá xanh 1×2 sạch tạp chất |
| Cát | Cát vàng hạt mịn | Cát vàng đổ bê tông | Cát vàng sàng tuyển chọn |
| Ống nước | PVC Bình Minh | uPVC Bình Minh / PPR | PPR Vesbo (chống tia UV) |
| Dây điện | Cadivi | Cadivi / Daphaco | Cadivi loại 1 chống cháy |
4.2. Lưu ý về vật tư hoàn thiện trong chi phí xây nhà 2 tầng
Phần hoàn thiện chiếm khoảng 30-40% tổng ngân sách. Khi lên kế hoạch chi phí xây nhà 2 tầng, gia chủ cần chú ý:
- Gạch ốp lát: Nên ưu tiên gạch Porcelain cho khu vực chịu lực tốt và gạch Ceramic cho ốp tường để tối ưu giá.
- Thiết bị vệ sinh: Các thương hiệu Inax, Toto có dải giá rộng, phù hợp với nhiều mức đầu tư.
- Sơn nước: Sử dụng sơn lót chống kiềm là bắt buộc để tránh bong tróc do độ ẩm nhiệt đới.
5. Quy trình tối ưu chi phí và quản lý thi công
Để kiểm soát chi phí xây nhà 2 tầng không bị phát sinh, một quy trình làm việc chuyên nghiệp là điều bắt buộc. Quy trình chuẩn thường bao gồm 8 bước từ khảo sát địa chất đến bàn giao nhà.
Quy trình tư vấn thiết kế nhà 2 tầng
- Khảo sát & Tư vấn: Đánh giá nền đất để chọn loại móng (móng băng, móng cọc hay móng đơn). Điều này ảnh hưởng trực tiếp đến 15% tổng chi phí xây nhà 2 tầng.
- Thiết kế sơ bộ: Định hình phong cách kiến trúc và công năng các phòng.
- Báo giá chi tiết: Lập bảng dự toán vật tư (BOQ) để gia chủ nắm rõ từng mục chi tiêu.
- Ký kết hợp đồng: Cam kết không phát sinh chi phí ngoài dự kiến.
- Xin phép xây dựng: Đảm bảo đúng mật độ xây dựng và chỉ giới đường đỏ theo quy định năm 2026.
- Thi công phần thô: Giám sát chặt chẽ cốt thép và mác bê tông.
- Thi công hoàn thiện: Lắp đặt nội thất, cửa, thiết bị điện nước.
- Nghiệm thu & Bảo hành: Chính sách bảo hành kết cấu thường kéo dài 5-10 năm.
Quy trình tư vấn thi công xây dựng nhà 2 tầng
6. Kinh nghiệm từ kiến trúc sư: Làm sao để giảm chi phí xây nhà 2 tầng?
Với hơn 10 năm kinh nghiệm trong lĩnh vực kiến trúc, tôi nhận thấy rằng việc tiết kiệm không phải là chọn vật liệu rẻ nhất, mà là chọn vật liệu phù hợp nhất.
Giải pháp thông gió và ánh sáng tự nhiên
Trong thiết kế nhà phố 2 tầng hiện đại, việc tích hợp giếng trời hoặc sân sau không chỉ tạo không gian sống trong lành mà còn giúp giảm chi phí xây nhà 2 tầng về mặt vận hành (tiết kiệm điện năng chiếu sáng và làm mát). Hệ thống thoát nhiệt tự nhiên qua mái tôn chống nóng hoặc sàn mái BTCT có lớp cách nhiệt là lựa chọn thông minh cho năm 2026.
Lựa chọn hệ móng phù hợp
Nếu nền đất cứng, sử dụng móng đơn sẽ tiết kiệm hơn rất nhiều so với móng băng hay móng cọc. Tuy nhiên, tính toán kết cấu khung phải tuyệt đối chính xác để đảm bảo an toàn. Đừng bao giờ cắt giảm chi phí ở phần khung xương của ngôi nhà.
Quản lý mật độ xây dựng
Việc tính toán hệ số tầng và mật độ xây dựng theo QCVN 01:2021/BXD giúp bạn tránh được các khoản phạt hành chính hoặc buộc phải tháo dỡ công trình, gây lãng phí nghiêm trọng.
Lý do khách hàng nên lựa chọn xây nhà trọn gói
7. Các yếu tố rủi ro thường gặp khi tính chi phí xây nhà 2 tầng
Nhiều gia chủ thường bị thu hút bởi các đơn giá siêu rẻ trên mạng. Tuy nhiên, cần cảnh giác với các chiêu trò “báo giá ảo” nhưng sau đó phát sinh chi phí ở các hạng mục phụ.
- Rủi ro vật tư: Nhà thầu sử dụng thép gầy, cát nhiễm mặn hoặc xi măng kém chất lượng để hạ giá thành.
- Rủi ro tiến độ: Thi công kéo dài làm tăng chi phí nhân công và ảnh hưởng đến kế hoạch về nhà mới.
- Rủi ro pháp lý: Xây dựng sai phép dẫn đến việc không thể hoàn công, làm giảm giá trị bất động sản.
Để đảm bảo chi phí xây nhà 2 tầng luôn nằm trong tầm kiểm soát, hãy lựa chọn các đơn vị có cam kết rõ ràng bằng hợp đồng, có hồ sơ năng lực thực tế và đội ngũ kỹ sư có chứng chỉ hành nghề.
Tổng kết lại, trong năm 2026, chi phí xây nhà 2 tầng dao động từ 6 triệu – 7,5 triệu/m2 cho gói trọn gói tùy vào mức độ cao cấp. Việc đầu tư vào một bản thiết kế bài bản và đơn vị thi công uy tín chính là cách tiết kiệm nhất để có một công trình bền vững, tiện nghi và sang trọng.
Nếu bạn đang tìm kiếm giải pháp tối ưu cho ngôi nhà tương lai, hãy liên hệ ngay với các chuyên gia kỹ thuật để nhận được bảng dự toán chính xác nhất dựa trên diện tích đất và nhu cầu thực tế của gia đình bạn.
[[
Last Updated on 03/03/2026 by Tuấn Trình

Mình là Tuấn Trình nhân viên tại Công ty Cổ phần Bao bì Xi măng Hải Phòng với 7 năm kinh nghiệm. Rất vui vì có thể hỗ trợ bạn.

Mặt bằng nhà 2 tầng 5×15
Chi phí xây nhà 2 tầng 5×15