Trong dòng chảy văn hóa ngàn năm của dân tộc, ngôi chùa không chỉ là nơi thờ tự mà còn là biểu tượng của sự bình an và tri thức tâm linh. Việc tìm kiếm một mẫu thiết kế chùa đẹp vào năm 2026 đòi hỏi sự kết thừa tinh tế giữa các quy tắc tạo hình cổ truyền và kỹ thuật xây dựng hiện đại, nhằm đảm bảo công trình trường tồn cùng thời gian.

Giá trị cốt lõi của kiến trúc tâm linh trong đời sống hiện đại
Kiến trúc chùa chiền Việt Nam mang đậm dấu ấn của triết lý Phật giáo phối hòa cùng bản sắc địa phương. Một bản vẽ thiết kế không đơn thuần là sự sắp đặt gạch đá, mà là sự tính toán kỹ lưỡng về “tỷ lệ vàng” trong kết cấu gỗ hoặc bê tông giả gỗ. Trong bối cảnh quỹ đất và ngân sách xây dựng có nhiều biến động, việc sở hữu một mẫu thiết kế chùa đẹp giúp các sư thầy và ban quản tự tối ưu hóa diện tích, đảm bảo công năng hành lễ đồng thời tạo ra không gian thanh tịnh tuyệt đối cho Phật tử thập phương.
Sự khác biệt giữa một công trình thông thường và một kiệt tác kiến trúc tâm linh nằm ở “chiều sâu” của chi tiết. Từ hệ thống mái đao cong vút được chạm trổ hình rồng phượng, đến các bộ vì kèo gỗ tinh xảo, tất cả đều phải tuân thủ nghiêm ngặt các tiêu chuẩn về kiến trúc cổ. Việc áp dụng công nghệ BIM (Building Information Modeling) vào thiết kế chùa trong năm 2026 giúp trực quan hóa mọi góc độ, từ ánh sáng tự nhiên đến luồng phân bổ khí động học trong chính điện.
Các thành phần bắt buộc trong một mẫu thiết kế chùa đẹp chuẩn mực
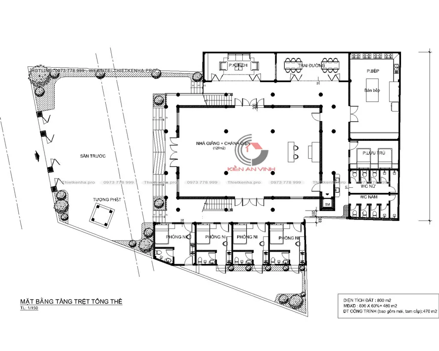
Để tạo nên một không gian thờ tự uy nghiêm, bản vẽ kỹ thuật cần phân tách rõ ràng các hạng mục công trình. Đây là sự tổng hòa giữa nghệ thuật điêu khắc và kỹ thuật xây dựng dân dụng chất lượng cao.
1. Cổng Tam Quan – Biểu tượng của sự giải thoát
Cổng Tam Quan là điểm chạm đầu tiên của Phật tử khi bước chân vào cõi thiêng. Thiết kế thường chia làm 3 lối đi: cổng chính ở giữa và hai cổng phụ (Tả môn, Hữu môn). Tùy vào quy mô, cổng có thể xây dựng theo lối chồng diêm hoặc gác mái, sử dụng chất liệu đá xanh nguyên khối hoặc gỗ tứ thiết. Các chi tiết hoành phi, câu đối và phù điêu tại cổng phải được thiết kế đồng bộ với kiến trúc chính của chùa.
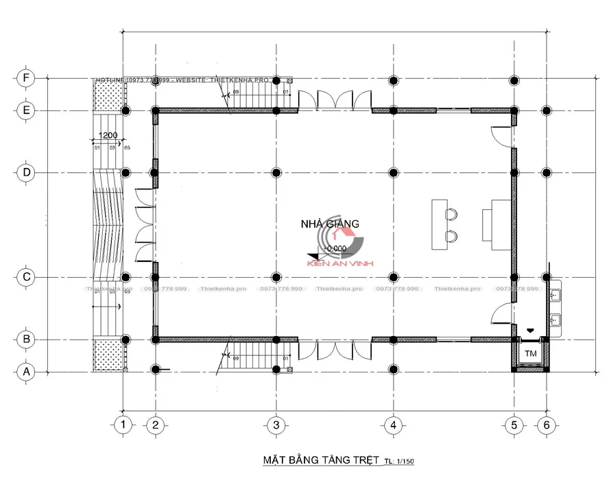
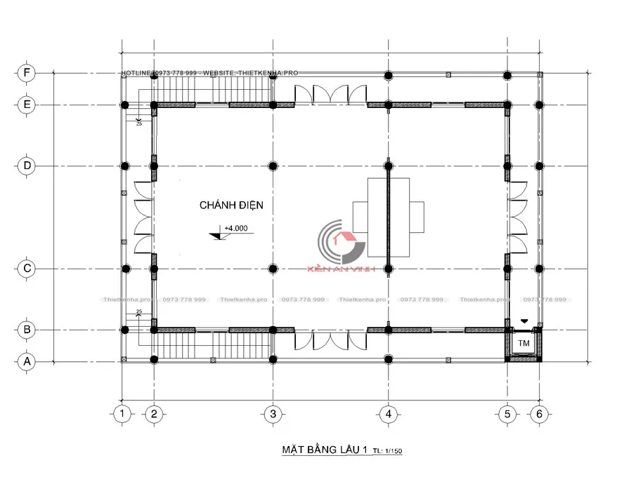
2. Khu vực Chính Điện (Tam Bảo)
Đây là “trái tim” của mọi mẫu thiết kế chùa đẹp. Chính điện thường được thiết kế theo hình chữ Đinh (J), chữ Công (I) hoặc chữ Tam (III). Hệ thống cột trụ tại đây đóng vai trò chịu lực chính, đồng thời là nơi thể hiện tài năng của nghệ nhân thông qua các đường chạm trổ tinh xảo. Chiều cao cốt nền của chính điện thường được đẩy lên cao hơn mặt sảnh để tạo vẻ bề thế và tôn nghiêm.

3. Phụ trợ kiến trúc: Nhà Tổ, Nhà Tăng và Hành Lang
Một không gian quy hoạch tổng thể bài bản không thể thiếu các công trình phụ trợ. Nhà Tổ là nơi thờ các vị sư trụ trì qua các thời kỳ, thường có quy mô nhỏ hơn chính điện nhưng vẫn tuân thủ phong cách thiết kế chung. Hệ thống hành lang uốn lượn xung quanh không chỉ có tác dụng che mưa nắng mà còn tạo ra ranh giới mềm mại giữa khu vực thờ tự và khu vực sinh hoạt, giúp giữ gìn không gian thanh tịnh.
Sự lựa chọn vật liệu tối ưu cho công trình chùa chiền năm 2026
Vật liệu là yếu tố tiên quyết quyết định tuổi thọ của công trình. Hiện nay, có hai hướng chính khi triển khai mẫu thiết kế chùa đẹp tùy thuộc vào điều kiện tài chính và sở thích của chủ đầu tư:
- Gỗ tự nhiên (Lim, Sưa, Mít): Mang lại vẻ đẹp cổ kính, khả năng cách nhiệt tốt và giá trị văn hóa cao. Tuy nhiên, chi phí rất lớn và đòi hỏi bảo dưỡng định kỳ để tránh mối mọt.
- Bê tông giả gỗ (Reinforced Concrete): Đây là xu hướng mạnh mẽ trong năm 2026. Với kỹ thuật sơn giả vân gỗ tinh vi, công trình vẫn giữ được hồn cốt truyền thống nhưng vượt trội về độ bền, khả năng chống cháy và tiết kiệm chi phí thi công lên đến 40-50%.
- Đá tự nhiên Ninh Bình/Thanh Hóa: Thường dùng cho các chi tiết cột, chân tảng, chiếu rồng và bia đá, tạo cảm giác kiên cố, vĩnh cửu.

Bảng dự toán chi phí xây dựng chùa chiền (Tham khảo 2026)
Mức chi phí xây dựng chùa phụ thuộc mật thiết vào diện tích sàn, loại vật liệu và mức độ tinh xảo của các họa tiết chạm khắc. Dưới đây là bảng giá ước tính dựa trên mặt bằng giá thị trường vật liệu xây dựng dự kiến năm 2026:
| Hạng mục công trình | Đơn vị | Đơn giá gỗ tự nhiên (Trđ) | Đơn giá bê tông giả gỗ (Trđ) | Ghi chú |
|---|---|---|---|---|
| Phần móng & kết cấu thô | m2 | 5.5 – 7.0 | 4.5 – 5.5 | Móng băng hoặc móng cọc |
| Hệ thống mái ngói mũi hài | m2 | 1.8 – 2.5 | 1.5 – 2.0 | Bao gồm lợp ngói và trang trí mái đao |
| Hệ thống cột & vì kèo | Trụ | 85 – 150 | 25 – 45 | Tùy vào đường kính cột và hoa văn |
| Trạm trổ phù điêu | m2 | 15 – 25 | 8 – 12 | Tính theo độ phức tạp của họa tiết |
| Cửa bức bàn/Cửa thượng song hạ bản | Bộ | 45 – 80 | 15 – 25 | Gỗ Lim hoặc bê tông đúc sẵn |
Lưu ý: Đơn giá trên chỉ mang tính chất tham khảo. Đơn giá thực tế sẽ dao động tăng hoặc giảm 15-20% tùy theo vị trí địa lý, địa hình vận chuyển và thời điểm cụ thể trong năm 2026.
Yếu tố phong thủy và cảnh quan trong mẫu thiết kế chùa đẹp
Trong kiến trúc tâm linh, phong thủy đóng vai trò điều hòa năng lượng “khí”, giúp ngôi chùa trở thành trung tâm thu hút linh khí của đất trời.
- Thế đất (Địa hình): Một mẫu thiết kế chùa đẹp nên tọa lạc trên thế đất “Tọa sơn hướng thủy” (tựa lưng vào núi, nhìn ra sông hồ). Nếu là đồng bằng, cần tạo ra các gò đất nhân tạo phía sau và ao môn phía trước để tụ thủy.
- Hướng nắng và gió: Kiến trúc chùa Việt thường ưu tiên hướng Nam hoặc Đông Nam để đón gió mát vào mùa hè và tránh gió lạnh mùa đông, đồng thời nhận được ánh sáng ôn hòa.
- Hệ thực vật: Sân chùa nên trồng các loại cây mang ý nghĩa tôn giáo như cây Bồ Đề, cây Sala, sen trong hồ, hoặc tùng bách. Những loại cây này không chỉ tạo bóng mát mà còn giúp thanh lọc không khí, tạo ra sự tĩnh lặng cần thiết cho người hành thiền.

Quy trình triển khai bản vẽ thiết kế chùa chuyên nghiệp
Việc thiết kế một công trình tâm linh đòi hỏi kiến trúc sư phải có kiến thức sâu rộng về văn hóa Phật giáo và các quy chuẩn quốc gia về xây dựng (QCVN).
- Giai đoạn 1: Khảo sát thực địa và định hướng: Đánh giá địa chất, đo đạc diện tích và xác định nhu cầu sử dụng của nhà chùa.
- Giai đoạn 2: Thiết kế sơ bộ (Concept): Phác thảo phối cảnh 3D tổng thể, thể hiện rõ phong cách kiến trúc (nhà chùa Bắc Bộ, chùa Nam Tông, hay chùa hiện đại).
- Giai đoạn 3: Hồ sơ kỹ thuật thi công: Đây là phần quan trọng nhất trong mẫu thiết kế chùa đẹp, bao gồm chi tiết kết cấu khung, bản vẽ điện nước, và đặc biệt là chi tiết các hoa văn trang trí đạt chuẩn kiến trúc cổ.
- Giai đoạn 4: Giám sát tác giả: Kiến trúc sư đồng hành cùng đội ngũ thợ lành nghề để đảm bảo các chi tiết đắp vẽ, đổ bê tông hoặc ghép gỗ chính xác theo tỷ lệ đã tính toán.

Lưu ý quan trọng khi triển khai xây dựng chùa trong năm 2026
Khi quyết định đầu tư vào việc kiến tạo một ngôi chùa, Ban trị sự và các nhà hảo tâm cần lưu tâm đến các vấn đề pháp lý và nhân văn:
- Tính pháp lý: Mọi công trình xây dựng chùa chiền đều phải có giấy phép xây dựng từ cơ quan chức năng có thẩm quyền. Hồ sơ phải tuân thủ đúng mật độ xây dựng và không xâm phạm vào các di tích văn hóa lịch sử đã được xếp hạng.
- Lựa chọn thợ mộc/thợ nề: Không giống như xây dựng nhà phố, xây chùa cần những tổ thợ chuyên biệt về kiến trúc cổ. Họ là những người am hiểu cách ghép mộng không dùng đinh, cách đắp phù điêu bằng vữa truyền thống.
- Dự toán ngân sách: Tránh việc vừa làm vừa nghĩ dẫn đến phát sinh chi phí. Một mẫu thiết kế chùa đẹp có hồ sơ dự toán chi tiết sẽ giúp kiểm soát tài chính minh bạch cho phía nhà chùa và Phật tử đóng góp.









Trong hành trình gìn giữ di sản văn hóa, việc lựa chọn một mẫu thiết kế chùa đẹp chính là gieo một hạt giống lành cho hành trình tâm linh của nhiều thế hệ mai sau. Một ngôi chùa bền vững về kết cấu, chuẩn mực về nghệ thuật và thanh tịnh về không gian sẽ luôn là bến đỗ bình yên cho tâm hồn mỗi chúng ta giữa cuộc sống biến động. Hy vọng với những chia sẻ chuyên sâu về kiến trúc và đơn giá xây dựng chùa năm 2026, quý vị sẽ có cái nhìn toàn diện để bắt đầu hành trình kiến tạo những công trình tâm linh ý nghĩa cho cộng đồng. Những mẫu thiết kế này không chỉ là bản vẽ kỹ thuật đơn thuần mà chính là sự kết tinh của niềm tin và khát vọng vươn tới cái đẹp vĩnh hằng trong tâm thức người Việt.
Last Updated on 02/03/2026 by Tuấn Trình

Mình là Tuấn Trình nhân viên tại Công ty Cổ phần Bao bì Xi măng Hải Phòng với 7 năm kinh nghiệm. Rất vui vì có thể hỗ trợ bạn.
