Trong bối cảnh quỹ đất đô thị ngày càng thu hẹp, mẫu thiết kế nhà gác lửng đang trở thành giải pháp kiến trúc “vàng” giúp gia tăng không gian sử dụng mà không làm phát sinh quá nhiều chi phí xây dựng. Không chỉ giải quyết bài toán về công năng cho gia đình từ 4-6 thành viên, kiến trúc tầng lửng còn tạo nên sự thông thoáng, phá vỡ sự bí bách của những ngôi nhà ống truyền thống.
Xu hướng kiến trúc tầng lửng: Giải pháp không gian thế kỷ 21
Kiến trúc tầng lửng (entresol) vốn có nguồn gốc từ châu Âu, ban đầu được sử dụng như các kho chứa hoặc khu vực làm việc trong xưởng. Tuy nhiên, dưới bàn tay của các kiến trúc sư hiện đại, tầng lửng đã biến hóa thành không gian sống đầy nghệ thuật. Tại Việt Nam, xu hướng này đặc biệt phát triển mạnh mẽ vào năm 2026, khi tiêu chuẩn sống “Breathable Home” (Nhà thở) lên ngôi.
Một mẫu thiết kế nhà gác lửng chuẩn mực không chỉ là việc chèn thêm một tấm sàn đúc giả, mà là sự tính toán kỹ lưỡng về tỷ lệ thông tầng (void area). Tỷ lệ này giúp luân chuyển không khí theo chiều dọc, giải nhiệt nhanh chóng cho các vùng khí nóng tích tụ sát trần nhà, đồng thời tạo ra hiệu ứng thị giác mở rộng tối đa cho phòng khách tầng trệt.
Phân tích phối cảnh mẫu thiết kế nhà gác lửng 3 phòng ngủ hiện đại
Ngôi nhà cấp 4 gác lửng 3 phòng ngủ chúng tôi giới thiệu dưới đây là một “case study” điển hình cho phong cách hiện đại tối giản (Modern Minimalism). Sự thành công của thiết kế này nằm ở khả năng điều tiết ánh sáng và sự kết nối giữa các thành viên trong gia đình.
Mặt tiền nhà gác lửng 3 phòng ngủ với thiết kế hiện đạiMặt tiền nhà gác lửng 3 phòng ngủ với thiết kế hiện đại
1. Ngoại thất: Tối giản nhưng đầy cá tính
Mặt tiền được tính toán dựa trên các khối hình học vuông vức, giúp giảm thiểu chi phí đắp phào chỉ rườm rà nhưng vẫn giữ được vẻ kiêu sa. Sự kết hợp giữa tông màu trắng sứ chủ đạo và các mảng kính cường lực khổ lớn tạo nên sự đồng nhất.
Điểm nhấn đầu tiên là 2 khung cửa kính lớn – nhà gác lửng 3 phòng ngủĐiểm nhấn đầu tiên là 2 khung cửa kính lớn
Kiến trúc sư đã khéo léo sử dụng hệ thống cửa kính kịch trần tại khu vực thông tầng. Điều này giúp tận dụng trọn vẹn ánh sáng tự nhiên từ hướng Đông hoặc Nam, giảm thiểu điện năng chiếu sáng vào ban ngày. Điểm xuyết thêm một khung cửa sổ tròn ở tầng trên, tạo ra sự mềm mại, cân bằng lại các đường nét thẳng tắp của công trình.
Cửa sổ tròn nhỏ được bố trí trên tầng lửng tạo cảm giác mềm mạiCửa sổ tròn nhỏ được bố trí trên tầng lửng tạo cảm giác mềm mại
2. Thiết kế nội thất và tối ưu luồng giao thông
Trong kiến trúc nhà ở dân dụng, luồng giao thông (traffic flow) quyết định 80% sự thuận tiện trong sinh hoạt. Với mẫu thiết kế nhà gác lửng này, phòng khách được đặt tại vị trí trung tâm, dưới khoảng thông tầng cao gần 5m, mang lại cảm giác bề thế như những căn penthouse sang trọng.
Phòng khách đầy đủ tiện nghiNgôi nhà gác lửng là sự kết hợp hoàn hảo giữa hiện đại và tiện nghi
Hệ thống cầu thang được thiết kế nép sát tường hoặc tích hợp kho chứa đồ phía dưới để tiết kiệm diện tích. Mỗi bậc thang đều được tính toán theo cung “Sinh” trong phong thủy kiến trúc, đảm bảo sự an tâm cho gia chủ.
3. Công năng chi tiết các khu vực
- Phòng ngủ: Được phân bổ hợp lý với 1 phòng ngủ lớn tại tầng trệt (dành cho người lớn tuổi để tránh leo trèo) và 2 phòng ngủ tại tầng lửng cho con cái. Tất cả các phòng đều có cửa sổ lấy sáng hoặc hướng ra giếng trời.
- Bếp và khu vực ăn: Thiết kế theo lối mở liên thông với phòng khách, tạo không gian sinh hoạt chung rộng rãi. Hệ thống thoát mùi được bố trí hướng thẳng ra sân sau hoặc giếng trời trung tâm.
- Khu vực thờ: Đặt tại vị trí cao nhất của tầng lửng, hướng ra mặt tiền, đảm bảo tính tôn nghiêm và yên tĩnh.
Thiết kế nội thất tinh tếPhối cảnh 3D nội thất hiện đại và tối ưu không gian
Giải pháp “Nhà Biết Thở”: Giếng trời và Đối lưu không khí
Một sai lầm thường gặp ở các mẫu thiết kế nhà gác lửng kém chất lượng là tình trạng nóng bức ở tầng trên do tích tụ nhiệt. Để khắc phục triệt để, thiết kế của chúng tôi tích hợp “lõi xanh” thông qua hệ thống giếng trời (skylight).
Góc nhìn từ trên cao xuống hệ thống máiMặt sau và mái của thiết kế nhà gác lửng 3 phòng ngủ
Áp dụng nguyên lý Bernoulli về sự chênh lệch áp suất, khí lạnh đi vào từ hệ thống cửa trước và cửa sau, khí nóng nhẹ hơn sẽ thoát ra ngoài qua cửa số mái và giếng trời. Điều này giúp nhiệt độ trong nhà luôn thấp hơn bên ngoài từ 2-3 độ C mà không cần sử dụng quá nhiều điều hòa.
Bố trí nhiều cửa sổ hướng sau nhà để ngôi nhà thông thoáng – thiết kế nhà gác lửng 3 phòng ngủBố trí nhiều cửa sổ hướng sau nhà để ngôi nhà thông thoáng
Tham khảo các phương án bản vẽ công năng điển hình 2026
Tùy vào diện tích đất (5x12m, 5x15m hay 5x20m), việc bố trí công năng sẽ có những điều chỉnh để đảm bảo mật độ xây dựng và quy chuẩn kỹ thuật. Dưới đây là mô phỏng 3D giúp bạn hình dung rõ nét nhất về cách phân bổ không gian.
Hình ảnh 3D bố trí công năng tầng trệt nhà gác lửng 3 phòng ngủHình ảnh 3D bố trí công năng tầng trệt nhà gác lửng 3 phòng ngủ
Tầng trệt đầy đủ công năng tiện nghi – thiết kế nhà gác lửng 3 phòng ngủTầng trệt với không gian bếp và phòng khách mở
Mặt sau ngôi nhà thường bị bỏ quên, nhưng trong thiết kế này, khoảng sân sau 2m được tận dụng làm khu giặt phơi và tiểu cảnh xanh, mang lại góc nhìn thư giãn từ phòng ngủ tầng trệt.
Khoảng sân sau rộng rãi của ngôi nhà – thiết kế nhà gác lửng 3 phòng ngủKhoảng sân sau rộng rãi tích hợp khu giặt phơi
Hình ảnh 3D bố trí công năng tầng lửng nhà gác lửng 3 phòng ngủHình ảnh 3D bố trí công năng tầng lửng nhà gác lửng 3 phòng ngủ
Sàn tầng lửng thường sử dụng kết cấu bê tông cốt thép toàn khối hoặc đúc giả bằng tấm cemboard nếu gia chủ muốn tiết kiệm chi phí và giảm tải trọng cho móng đơn.
Tầng lửng với 2 phòng ngủ rộng rãi – thiết kế nhà gác lửng 3 phòng ngủHệ hành lang tầng lửng an toàn và thông thoáng
Bố trí nội thất thông minh & tận dụng tối đa không gian – thiết kế nhà gác lửng 3 phòng ngủNội thất phòng ngủ tối giản theo phong cách Nhật Bản
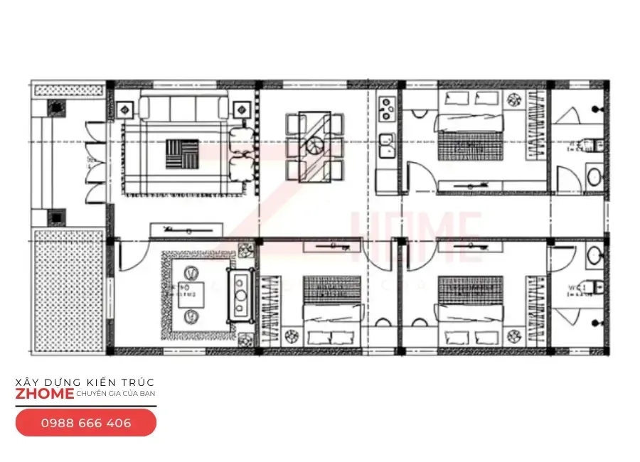
Tuyển tập 8 mẫu bản vẽ mặt bằng tối ưu
Mời quý bạn đọc tham khảo chuỗi bản vẽ kỹ thuật được kiến trúc sư đánh giá cao về tính khả thi trong thi công:
Mẫu 1 – Gợi ý bố trí công năng nhà gác lửng 3 phòng ngủMẫu 1: Dành cho diện tích nhà phố điển hình
Mẫu 2 – Gợi ý bố trí công năng nhà gác lửng 3 phòng ngủMẫu 2: Tối ưu cho gia đình có con nhỏ
Mẫu 3 – Gợi ý bố trí công năng nhà gác lửng 3 phòng ngủMẫu 3: Thiết kế có sân vườn trước rộng
Mẫu 4 – Gợi ý bố trí công năng nhà gác lửng 3 phòng ngủMẫu 4: Giải pháp cho nhà đất hẹp hậu
Mẫu 5 – Gợi ý bố trí công năng nhà gác lửng 3 phòng ngủMẫu 5: Ưu tiên diện tích phòng khách
Mẫu 6 – Gợi ý bố trí công năng nhà gác lửng 3 phòng ngủMẫu 6: Bố trí không gian theo phong thủy
Mẫu 7 – Gợi ý bố trí công năng nhà gác lửng 3 phòng ngủMẫu 7: Tối ưu hệ thống nhà vệ sinh riêng
Mẫu 8 – Gợi ý bố trí công năng nhà gác lửng 3 phòng ngủMẫu 8: Mẫu nhà ống có gác lửng hiện đại
Báo giá thi công trọn gói mẫu thiết kế nhà gác lửng năm 2026
Chi phí xây dựng luôn là mối quan tâm hàng đầu của chủ đầu tư. Dưới đây là bảng dự toán chi tiết dựa trên đơn giá xây dựng dự kiến tại thời điểm năm 2026. Lưu ý: Đơn giá thực tế có thể dao động +/- 10% tùy thuộc vào giá nguyên vật liệu tại địa phương và nền móng công trình.
Dự toán tham khảo cho nhà gác lửng (Diện tích sàn trệt 60-100m²)
| Hạng mục công việc | Đơn vị tính | Đơn giá dự kiến (VND) | Ghi chú |
|---|---|---|---|
| Xây dựng phần thô | $m^2$ | 3.500.000 – 3.800.000 | Bao gồm vật tư thô + nhân công |
| Thi công hoàn thiện | $m^2$ | 2.000.000 – 3.000.000 | Tùy vào gói vật tư (Khá/Tốt) |
| Ép cọc/Làm móng | Gói | 50.000.000 – 150.000.000 | Tùy địa chất thực tế |
Ví dụ tính toán chi phí thực tế cho diện tích 5x20m (100m²)
Áp dụng cho gói thi công mẫu thiết kế nhà gác lửng tiêu chuẩn với đơn giá trọn gói trung bình 5.800.000 VND/$m^2$:
- Phần móng (Móng băng tạm tính 50%): $100m^2 times 50% = 50m^2$
- Tầng trệt (100%): $100m^2$
- Tầng lửng (Chiếm 70% diện tích): $70m^2$
- Phần mái (Mái tôn/Sắt hộp 30%): $30m^2$
Tổng diện tích sàn tính phí: $50 + 100 + 70 + 30 = 250m^2$
Tổng chi phí dự kiến: $250m^2 times 5.800.000 = mathbf{1.450.000.000}$ VND (Một tỷ bốn trăm năm mươi triệu đồng).
Những lưu ý “sống còn” khi triển khai xây dựng nhà gác lửng
Việc thực hiện mẫu thiết kế nhà gác lửng đòi hỏi sự am hiểu sâu về kỹ thuật kết cấu và quy chuẩn xây dựng Việt Nam. Chủ đầu tư cần lưu ý các điểm sau:
- Độ cao tầng lửng: Theo quy chuẩn, tầng lửng thường chiếm tối đa 65-80% diện tích sàn phía dưới. Độ cao lý tưởng cho tầng lửng là từ 2.5m đến 2.8m. Nếu làm quá thấp sẽ gây cảm giác đè nén, quá cao sẽ làm mất cân đối tỷ lệ nhà ống.
- Tiêu chuẩn an toàn: Hệ thống lan can tầng lửng phải cao ít nhất 900mm và sử dụng vật liệu chắc chắn (kính cường lực 10-12mm hoặc gỗ tự nhiên) để đảm bảo an toàn cho trẻ nhỏ.
- Vấn đề chống nóng: Do tầng lửng tiếp giáp gần nhất với mái, việc sử dụng vật liệu cách nhiệt là bắt buộc. HCPC khuyến nghị sử dụng mái ngói hoặc mái tôn lạnh 3 lớp tích hợp bông thủy tinh để duy trì nhiệt độ ổn định.
HCPC – Chuyên gia tư vấn và cung ứng giải pháp xây dựng bền vững
Công ty Cổ phần Bao bì Xi măng Hải Phòng (HCPC) không chỉ tự hào với bề dày kinh nghiệm trong ngành vật liệu và dịch vụ hỗ trợ xây dựng, mà còn là đối tác tin cậy của nhiều đơn vị kiến trúc hàng đầu. Chúng tôi hiểu rằng, một ngôi nhà đẹp bắt đầu từ những lựa chọn vật liệu chuẩn xác và một bản vẽ giàu tâm huyết.
HCPC đồng hành cùng công trình ViệtĐơn vị tư vấn và thi công chuyên nghiệp uy tín
Dù bạn đang tìm kiếm ý tưởng cho một mẫu thiết kế nhà gác lửng hiện đại hay cần tư vấn về các tiêu chuẩn vật liệu bền vững theo thời gian, đội ngũ chuyên gia của chúng tôi luôn sẵn sàng hỗ trợ. Chúng tôi cam kết mang lại giá trị thực, sự minh bạch trong chi phí và chất lượng vượt trội cho mỗi công trình.
Sở hữu một không gian sống thông minh không còn là điều quá xa vời nếu bạn biết cách tận dụng những ưu điểm vượt trội của kiến trúc tầng lửng. Đây không chỉ là một ngôi nhà, mà là tài sản đầu tư cho sức khỏe và hạnh phúc bền lâu của cả gia đình.
Last Updated on 02/03/2026 by Tuấn Trình

Mình là Tuấn Trình nhân viên tại Công ty Cổ phần Bao bì Xi măng Hải Phòng với 7 năm kinh nghiệm. Rất vui vì có thể hỗ trợ bạn.
