Khi thị trường đồ thể thao phát triển mạnh, thiết kế shop thể thao trở thành yếu tố quyết định sức hút với khách hàng trẻ. Không gian cửa hàng cần thể hiện sự năng động, cá tính, đồng thời tối ưu diện tích trưng bày sản phẩm. Bài viết phân tích dự án thực tế shop Thắng Lợi 20m² tại Hà Nội, giúp bạn nắm rõ cách bố trí mặt bằng, lựa chọn vật liệu và ước tính chi phí thi công.
Phân tích không gian shop thể thao 20m²
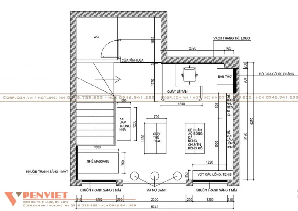
Với diện tích 20m², việc tối ưu từng mét vuông là bắt buộc. Shop Thắng Lợi áp dụng phương án bố trí dọc: khu vực trưng bày chính chiếm 12-14m², quầy thu ngân 2-3m², kho nhỏ 4-5m². Chiều cao trần 3.2m cho phép lắp kệ treo tường tầng cao, tăng 30-40% diện tích trưng bày so với chỉ dùng kệ đứng.
Mặt tiền kính cường lực 10mm trong suốt tạo tầm nhìn xuyên thấu, kết hợp đèn LED thanh nhôm chiếu sáng đều 500-700 lux. Sàn gỗ công nghiệp AC4 dày 8mm chịu lực tốt, chống trầy xước khi di chuyển hàng hóa. Tường sơn màu trắng xám làm nền trung tính, làm nổi bật màu sắc sản phẩm.
Nguyên tắc bố trí kệ trưng bày hiệu quả
Kệ treo tường kim loại sơn tĩnh điện cao 2.4m, chia 4 tầng, mỗi tầng cách nhau 60cm. Khoảng cách giữa các kệ 1.2-1.5m đảm bảo khách di chuyển thoải mái. Kệ đứng giữa shop cao 1.4m để không che tầm nhìn từ mặt tiền vào sâu.
Vùng “hot zone” (tầm mắt 1.2-1.6m) trưng bày sản phẩm chủ lực: giày chạy bộ, áo thun thể thao. Tầng dưới (dưới 80cm) để hàng phụ kiện giá thấp. Tầng trên (trên 1.8m) trưng bày mẫu hoặc hàng ít luân chuyển.
Chi phí thi công nội thất shop thể thao
| Hạng mục | Đơn vị | Đơn giá (triệu đồng) | Ghi chú |
|---|---|---|---|
| Kệ treo tường kim loại | m² | 1.2 – 1.8 | Tùy độ dày thép, sơn tĩnh điện |
| Kệ đứng trưng bày | bộ | 3.5 – 5.5 | Kích thước 1.2m x 0.4m x 1.4m |
| Sàn gỗ công nghiệp AC4 | m² | 0.35 – 0.55 | Bao gồm thi công, len chân tường |
| Trần thạch cao phẳng | m² | 0.18 – 0.25 | Khung xương C, tấm Knauf 9.5mm |
| Đèn LED thanh nhôm | bộ | 0.45 – 0.7 | Công suất 18W, ánh sáng trắng 6000K |
| Quầy thu ngân gỗ MDF | bộ | 4.5 – 7.0 | Kích thước 1.2m x 0.6m x 1.1m |
| Sơn tường nội thất | m² | 0.045 – 0.065 | Dulux/Jotun, 2 lớp lót + 2 lớp phủ |
Bảng giá tham khảo tại Hà Nội tháng 3/2026, chưa bao gồm VAT. Chi phí dao động ±15% tùy vị trí, nhà cung cấp và khối lượng thi công.
Tổng chi phí nội thất shop 20m² dao động 85-130 triệu đồng, bao gồm thiết kế, vật liệu và thi công. Nếu sử dụng kệ gỗ MDF thay kim loại, chi phí tăng 20-25% nhưng tạo cảm giác ấm hơn.
Lựa chọn màu sắc và ánh sáng phù hợp
Màu chủ đạo trắng-xám-đen tạo nền trung tính, kết hợp điểm nhấn cam/xanh dương ở logo, biển hiệu. Tránh dùng quá 3 màu chính để không gây rối mắt. Sơn bóng cho tường quầy thu ngân tạo điểm sáng, tường trưng bày dùng sơn mờ chống lóa.
Hệ thống chiếu sáng kết hợp: đèn LED thanh 6000K (ánh sáng trắng) chiếu tổng thể, đèn rọi 4000K (trung tính) nhấn mạnh khu vực giày dép. Cường độ sáng 500-700 lux đủ để khách nhìn rõ chi tiết sản phẩm mà không gây chói.
Vật liệu bền, dễ vệ sinh cho shop thể thao
Sàn gỗ công nghiệp AC4 chịu mài mòn tốt hơn AC3, phù hợp lưu lượng khách 50-100 người/ngày. Tránh dùng sàn gỗ tự nhiên vì dễ trầy, khó bảo dưỡng. Sàn gạch men 60x60cm cũng là lựa chọn, nhưng cảm giác lạnh hơn.
Kệ kim loại sơn tĩnh điện chống gỉ, lau chùi đơn giản bằng khăn ẩm. Kệ gỗ MDF phủ melamine chống ẩm tốt, nhưng cần tránh va đập mạnh. Tường sơn nội thất cao cấp (Dulux, Jotun) chống bám bẩn, lau sạch dễ dàng.
Lưu ý khi thi công shop diện tích nhỏ
Kiểm tra hệ thống điện trước khi lắp đèn: công suất tổng 2-3kW cho đèn LED, điều hòa 9000BTU. Dây điện 2.5mm² chịu tải an toàn. Lắp aptomat chống quá tải 20A.
Thi công sàn gỗ cần làm phẳng nền bê tông, độ chênh lệch <3mm/2m. Lót màng PE chống ẩm trước khi lắp sàn. Để khe co giãn 8-10mm ở mép tường.
Lắp kệ treo tường phải khoan vào tường gạch hoặc bê tông, tránh tường thạch cao. Dùng tắc kê inox M10, khoảng cách 40-50cm. Kiểm tra độ chịu lực trước khi trưng bày hàng.
So sánh phong cách thiết kế shop thể thao
Phong cách công nghiệp: Trần để lộ kết cấu, tường gạch thô, kệ kim loại đen. Chi phí thấp hơn 15-20% do ít hoàn thiện. Phù hợp thương hiệu streetwear, phong cách cá tính mạnh.
Phong cách tối giản hiện đại: Tường trắng, kệ gỗ sáng màu, đèn âm trần. Tạo cảm giác sạch sẽ, chuyên nghiệp. Chi phí trung bình, phù hợp đa số thương hiệu thể thao.
Phong cách năng động: Màu sắc tươi sáng (cam, xanh lá), tường ốp gỗ nhựa composite, đèn LED đổi màu. Chi phí cao hơn 25-30%, thu hút khách trẻ dưới 25 tuổi.
Tối ưu trải nghiệm khách hàng
Bố trí gương thử giày cao 1.8m ở cuối lối đi chính. Đặt ghế ngồi thử 2-3 chiếc, cao 45cm, rộng 50cm. Khu vực này cần đủ ánh sáng để khách nhìn rõ sản phẩm khi mặc thử.
Lắp điều hòa 9000BTU cho 20m², nhiệt độ 24-26°C. Quạt trần bổ trợ lưu thông không khí. Hệ thống âm thanh nhẹ nhàng (60-70dB) phát nhạc EDM, pop nhẹ tạo không khí năng động.
Quầy thu ngân đặt gần cửa ra vào, tầm nhìn bao quát toàn shop. Màn hình hiển thị giá rõ ràng. Kệ nhỏ bên cạnh quầy trưng bày phụ kiện giá thấp (tất, băng đô) kích thích mua hàng phụ.
mat tien shop the thao thang loiMặt tiền shop thể thao Thắng Lợi với kính cường lực trong suốt
mat bang cong nang shop the thao thang loiMặt bằng công năng shop thể thao Thắng Lợi
mau thiet ke noi that shop the thao thang loi 1Khu vực trưng bày chính với kệ kim loại đen
mau thiet ke shop the thao thang loi 2Góc nhìn từ quầy thu ngân ra mặt tiền
mau thiet ke shop the thao thang loi 3Kệ treo tường tầng cao tối ưu diện tích
mau thiet ke shop the thao thang loi 4Hệ thống đèn LED thanh chiếu sáng đều
Thiết kế shop thể thao thành công cần cân bằng giữa thẩm mỹ và chức năng. Với diện tích 20m², việc tối ưu bố trí kệ, ánh sáng và màu sắc giúp tăng 30-40% hiệu quả trưng bày. Chi phí 85-130 triệu đồng là mức hợp lý cho shop quy mô nhỏ tại Hà Nội năm 2026.
Last Updated on 12/03/2026 by Tuấn Trình

Mình là Tuấn Trình nhân viên tại Công ty Cổ phần Bao bì Xi măng Hải Phòng với 7 năm kinh nghiệm. Rất vui vì có thể hỗ trợ bạn.
