Khi chuẩn bị hồ sơ xin giấy phép xây dựng, bản vẽ thiết kế xây dựng là thành phần quan trọng nhất, quyết định việc hồ sơ được phê duyệt hay trả lại. Theo Nghị định 15/2021/NĐ-CP (sửa đổi bởi NĐ 06/2021/NĐ-CP), bản vẽ phải thể hiện đầy đủ thông tin về quy mô, mật độ, và tuân thủ quy hoạch được duyệt. Bài viết này hướng dẫn chi tiết các thành phần bắt buộc trong bản vẽ thiết kế xây dựng xin phép.
Thành Phần Bắt Buộc Trong Bản Vẽ Xin Phép
1. Bản Đồ Vị Trí (Tọa Độ Đất)
Bản đồ vị trí phải thể hiện chính xác ranh giới thửa đất theo Giấy chứng nhận quyền sử dụng đất (sổ đỏ/sổ hồng). Nội dung bao gồm:
- Tọa độ các góc thửa đất (hệ VN-2000 hoặc WGS-84)
- Vị trí các công trình lân cận (nhà hàng xóm, đường giao thông)
- Khoảng cách từ ranh đất đến tim đường, lộ giới
Lưu ý: Nếu sổ cũ chưa có tọa độ, bạn cần thuê đơn vị đo đạc lập bản đồ hiện trạng theo Thông tư 27/2018/TT-BTNMT.
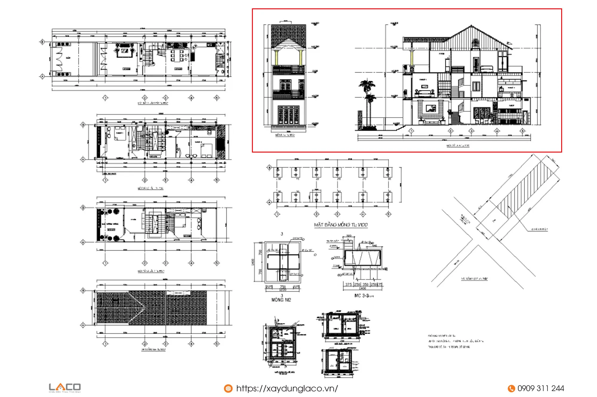
2. Mặt Bằng Tổng Thể và Mặt Bằng Từng Tầng
Mặt bằng tổng thể thể hiện diện tích xây dựng so với diện tích đất, phục vụ kiểm tra mật độ xây dựng. Theo quy định tại Quyết định 10/2022/QĐ-UBND (TP.HCM), mật độ xây dựng tối đa phụ thuộc vào lộ giới đường:
- Lộ giới < 6m: mật độ ≤ 60%
- Lộ giới 6-12m: mật độ ≤ 70%
- Lộ giới > 12m: mật độ ≤ 80%
Mặt bằng từng tầng (tầng trệt, lầu 1, lầu 2, mái) phải ghi rõ:
- Kích thước các phòng (dài × rộng, đơn vị mét)
- Vị trí cửa đi, cửa sổ, cầu thang
- Diện tích sàn xây dựng từng tầng

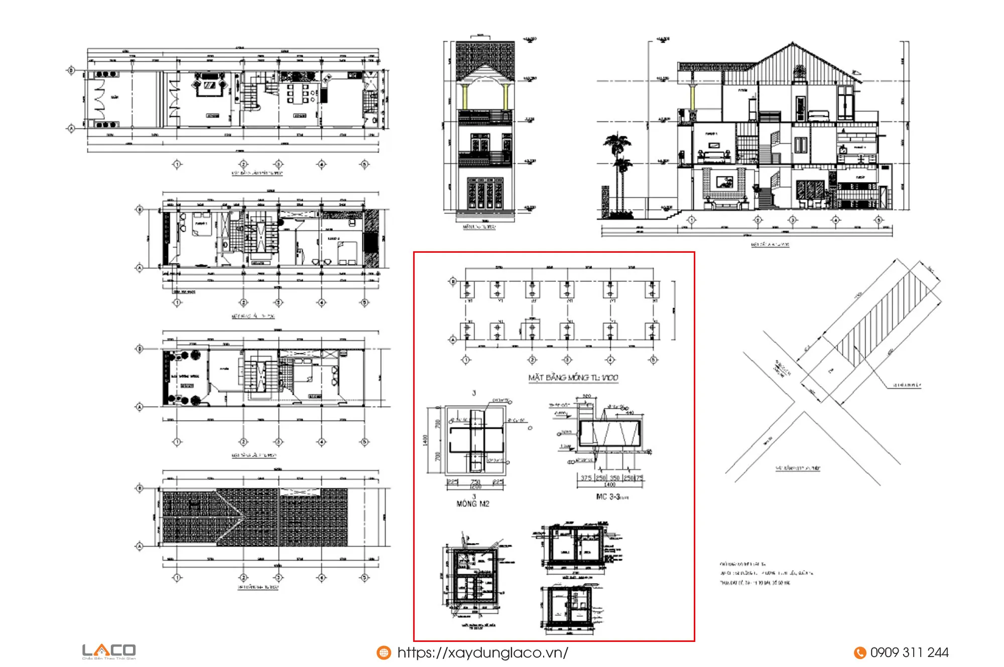
3. Mặt Cắt Dọc (Mặt Cắt AA)
Mặt cắt thể hiện chiều cao công trình từ móng đến mái, bao gồm:
- Cao độ nền nhà so với vỉa hè (±0.00)
- Chiều cao từng tầng (tầng trệt, lầu 1, lầu 2…)
- Chiều sâu móng, tầng hầm (nếu có)
Quy định chiều cao tầng (Quyết định 10/2022/QĐ-UBND):
- Lộ giới 3,5-7m: cao độ tối đa từ vỉa hè đến sàn lầu 1 là 5,8m; đến sàn tầng 3 là 13,6m
- Lộ giới 7-12m: cao độ tối đa đến sàn lầu 1 là 6,5m; đến sàn tầng 4 là 17,5m

4. Mặt Đứng (Mặt Tiền và Mặt Hông)
Mặt đứng thể hiện hình dáng kiến trúc công trình nhìn từ bên ngoài:
- Vị trí cửa chính, cửa sổ, ban công
- Hình dáng mái (mái bằng, mái thái, mái lợp ngói)
- Vật liệu hoàn thiện mặt ngoài (sơn, ốp đá, kính…)

5. Khung Tên Bản Vẽ (Chữ Ký Pháp Lý)
Khung tên phải có đầy đủ 3 chữ ký:
Chủ đầu tư (chủ nhà): Ký và ghi rõ họ tên đúng với sổ đỏ. Nếu sổ ghi tên cả vợ chồng, cả hai phải ký.
Kiến trúc sư thiết kế: Phải có chứng chỉ hành nghề kiến trúc (theo Nghị định 100/2007/NĐ-CP). Ghi rõ số chứng chỉ hành nghề.
Đơn vị tư vấn thiết kế: Tên công ty, mã số thuế, địa chỉ, số điện thoại. Công ty phải có Giấy phép hoạt động xây dựng.
Khu vực để trống: Dành cho cơ quan quản lý xây dựng (Phòng Quản lý đô thị quận/huyện) phê duyệt, đóng dấu.
Quy Định Kỹ Thuật Về Mở Cửa, Ban Công Sang Nhà Bên
Theo Nghị định 15/2021/NĐ-CP, Điều 9, Khoản 3:
- Từ tầng 2 trở lên: Nếu tường cách ranh đất < 2m, không được mở cửa đi, cửa sổ, ban công hướng sang nhà bên.
- Nếu muốn mở: Phải có văn bản thỏa thuận với hộ liền kề, được chứng thực bởi UBND phường/xã.
- Vị trí cửa: Tránh tia nhìn trực tiếp vào nội thất nhà bên cạnh.
Lưu ý: Khi thỏa thuận bị hủy bỏ, việc bít cửa sổ, ban công là bắt buộc mà không cần xét xử.
Quy Mô Xây Dựng Theo Lộ Giới
Số tầng tối đa phụ thuộc vào lộ giới đường (Quyết định 10/2022/QĐ-UBND, TP.HCM):
- Lộ giới < 6m: tối đa 3 tầng + 1 tầng lửng
- Lộ giới 6-12m: tối đa 4 tầng + 1 tầng lửng
- Lộ giới 12-20m: tối đa 5 tầng + 1 tầng lửng
- Lộ giới > 20m: tối đa 7 tầng (hoặc theo quy hoạch chi tiết)
Ký hiệu “+1”: Nghĩa là được xây thêm 1 tầng lửng (diện tích ≤ 50% diện tích sàn tầng dưới).
Khổ Giấy và Tỷ Lệ Bản Vẽ
- Khổ giấy: A3 (297×420mm) hoặc A2 (420×594mm), tùy quy mô công trình
- Tỷ lệ: 1:100 (phổ biến nhất), 1:50 (công trình nhỏ), 1:200 (công trình lớn)
- Định dạng nộp: Bản giấy (ký tên, đóng dấu) + file PDF (nếu nộp online qua Cổng dịch vụ công)

Checklist Trước Khi Nộp Hồ Sơ
- [ ] Mật độ xây dựng ≤ quy định theo lộ giới
- [ ] Số tầng ≤ quy định theo lộ giới
- [ ] Chiều cao tầng ≤ quy định
- [ ] Tọa độ đất khớp với sổ đỏ
- [ ] Có văn bản thỏa thuận hàng xóm (nếu mở cửa sang bên)
- [ ] Đầy đủ 3 chữ ký: chủ nhà, kiến trúc sư, đơn vị tư vấn
- [ ] Kiến trúc sư có chứng chỉ hành nghề hợp lệ
Bản vẽ thiết kế xây dựng xin phép không phức tạp nếu bạn nắm rõ quy định. Tuy nhiên, để tránh trả hồ sơ nhiều lần, nên nhờ đơn vị tư vấn có kinh nghiệm kiểm tra kỹ trước khi nộp. Mọi thông tin trên chỉ mang tính tham khảo, vui lòng liên hệ Phòng Quản lý đô thị quận/huyện nơi có đất để được hướng dẫn cụ thể theo địa phương.
Last Updated on 09/03/2026 by Tuấn Trình

Mình là Tuấn Trình nhân viên tại Công ty Cổ phần Bao bì Xi măng Hải Phòng với 7 năm kinh nghiệm. Rất vui vì có thể hỗ trợ bạn.
