Trong bối cảnh ngành kiến trúc và xây dựng ngày càng khắt khe về tiêu chuẩn kỹ thuật cũng như thẩm mỹ, việc sở hữu một bản vẽ thiết kế nội thất hoàn chỉnh không chỉ đơn thuần là tập hợp những hình ảnh 3D đẹp mắt. Đây là “kim chỉ nam” quyết định sự chuẩn xác về kết cấu, tối ưu hóa công năng và kiểm soát tài chính cho gia chủ trong suốt quá trình biến ý tưởng thành thực tế hiện hữu.
Bộ hồ sơ thiết kế nội thất là gìBộ hồ sơ thiết kế nội thất là nền tảng quan trọng giúp đồng bộ hóa giữa ý tưởng và thi công thực tế.
Vì sao bản vẽ thiết kế nội thất là “linh hồn” của công trình?
Nhiều gia chủ thường lầm tưởng chỉ cần xem qua phối cảnh 3D là đủ để bắt tay vào thi công. Tuy nhiên, theo kinh nghiệm hơn 10 năm trong ngành kiến trúc, chúng tôi khẳng định rằng phối cảnh chỉ chiếm 30% giá trị của một bộ hồ sơ. 70% còn lại nằm ở các thông số kỹ thuật, bóc tách khối lượng và sơ đồ hạ tầng.
Thiếu một bản vẽ thiết kế nội thất chi tiết, bạn sẽ đối mặt với hàng loạt rủi ro:
- Xung đột hệ thống cơ điện (MEP): Ổ cắm bị tủ che khuất, điều hòa lắp sai vị trí thoát nước, hoặc đèn trần không đúng tâm điểm trang trí.
- Lãng phí chi phí vật tư: Không có bảng dự toán (Quantity Surveyor – QS), gia chủ dễ bị “đội vốn” do mua thừa hoặc mua sai chủng loại vật liệu.
- Sai lệch kích thước nhân trắc học: Tủ bếp quá cao, lối đi quá hẹp (dưới 600mm) gây khó khăn trong sinh hoạt hàng ngày.
Khi bước sang năm 2026, các tiêu chuẩn về không gian sống xanh (Biophilic design) và nhà thông minh (Smart home) yêu cầu các bản vẽ phải đạt độ chính xác đến từng milimet để tích hợp các thiết bị cảm biến và hệ thống vận hành tự động.
Thành phần cấu tạo của một hồ sơ thiết kế nội thất tiêu chuẩn
Một bộ hồ sơ kỹ thuật đầy đủ sẽ giúp đội ngũ thợ lành nghề hiểu rõ ý đồ của kiến trúc sư mà không cần giải thích bằng lời. Thông thường, một bản vẽ thiết kế nội thất chất lượng cao tại HCPC bao gồm 5 phân mục lớn:
1. Phân phối mặt bằng và tổ chức không gian (2D)
Đây là bản vẽ quan trọng nhất, thể hiện tư duy quy hoạch không gian của kiến trúc sư. Nó cho thấy cách sắp xếp các khu vực chức năng sao cho đảm bảo luồng giao thông mạch lạc và mật độ xây dựng nội thất hợp lý.
- Vị trí tường ngăn, cửa sổ, cửa đi.
- Kích thước chi tiết các vật dụng rời (sofa, bàn ăn, giường).
- Ghi chú về cao độ sàn và các diện tường.
Mặt bằng bố trí trong hồ sơ thiết kế nội thấtBản vẽ mặt bằng bố trí nội thất giúp gia chủ cái nhìn tổng thể về công năng sử dụng.
2. Hệ thống phối cảnh 3D trực quan
Sử dụng các phần mềm chuyên dụng như 3DsMax hay Revit, kiến trúc sư sẽ tái hiện không gian với đầy đủ ánh sáng, màu sắc và chất liệu vật liệu. Trong năm 2026, các bản phối cảnh còn tích hợp công nghệ VR (thực tế ảo) và nền tảng thiết kế mỹ thuật số giúp gia chủ “đi bộ” trong ngôi nhà tương lai của mình ngay trên bản vẽ.
Bản vẽ phối cảnh 3D là một phần trong hồ sơ thiết kế nội thất hoàn chỉnhPhối cảnh 3D giúp hiện thực hóa những ý tưởng trừu tượng thành hình ảnh sống động.
3. Chi tiết triển khai hạ tầng (Trần – Tường – Sàn)
Phần này yêu cầu sự am hiểu sâu về kỹ thuật vật liệu. Mỗi vị trí khớp nối giữa các loại vật liệu (ví dụ giữa sàn gỗ và nẹp đồng) đều phải được thể hiện rõ ràng.
- Mặt bằng trần: Thể hiện chi tiết trần thạch cao, các lớp phào chỉ, cao độ giật cấp và vị trí lắp đặt thiết bị chiếu sáng.
- Mặt bằng sàn: Chỉ định loại gạch, gỗ, đá, cách lát (xương cá, lát thẳng) và cốt sàn tại các khu vực khô – ướt.
- Triển khai vách: Các diện tường trang trí được bóc tách chi tiết về vật liệu (lam gỗ, tấm giả đá, giấy dán tường).
4. Bản vẽ kỹ thuật đồ gỗ (Shop Drawing)
Đây là phần bài viết bản vẽ thiết kế nội thất đi sâu vào việc chế tạo tại xưởng. Mỗi món đồ như tủ áo, kệ tivi đều có bản vẽ cấu tạo riêng, bao gồm:
- Kích thước phủ bì và lọt lòng.
- Loại phụ kiện sử dụng (bản lề xéo, ray trượt giảm chấn).
- Mã màu ván (An Cường, Minh Long…) và chủng loại bề mặt (Melamine, Laminate, Acrylic).
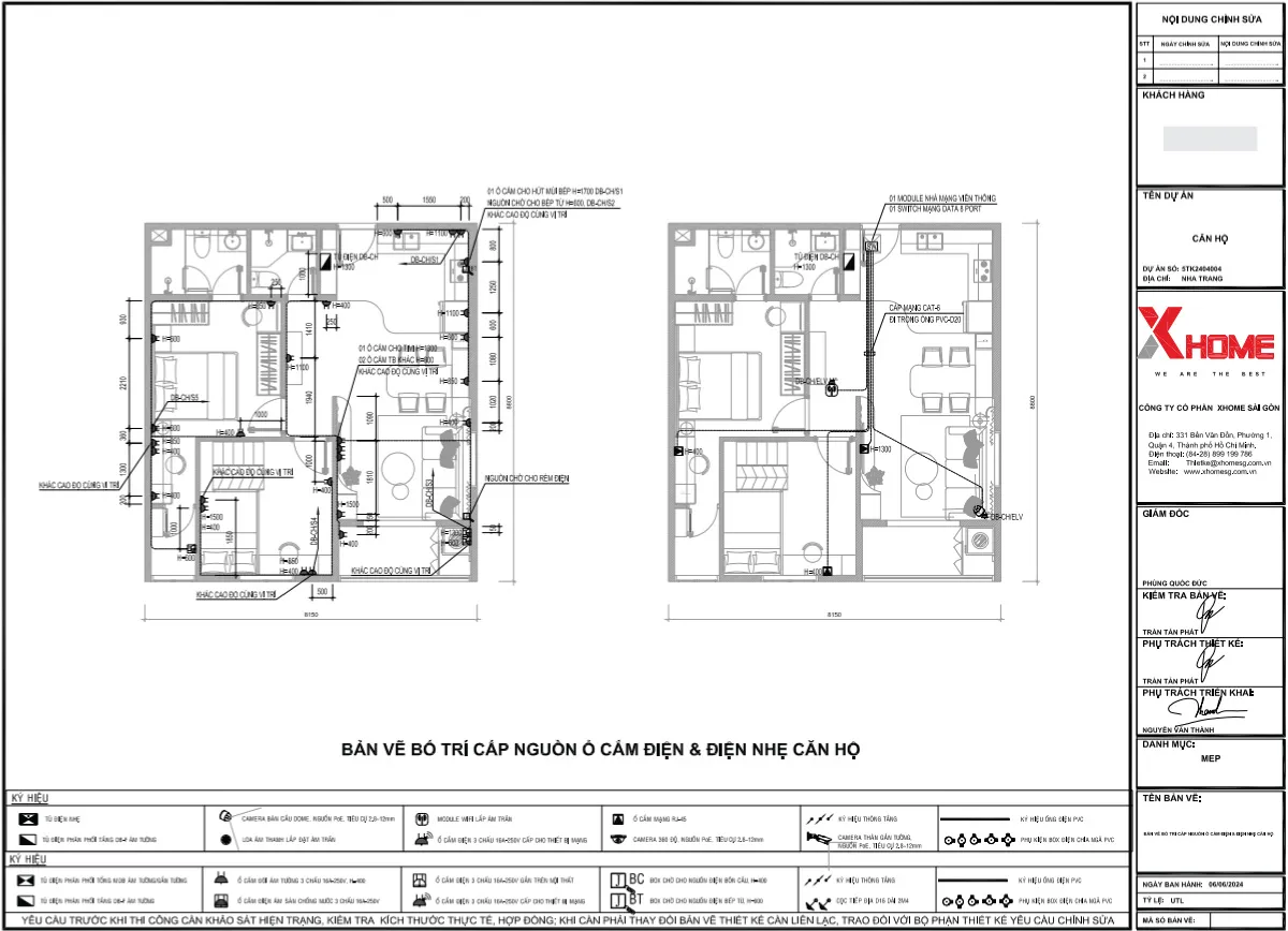
5. Hồ sơ kỹ thuật điện – nước (MEP)
Hệ thống MEP được ví như “mạch máu” của ngôi nhà. Bản vẽ MEP phải đảm bảo tính an toàn theo tiêu chuẩn TCVN về phòng cháy chữa cháy và kỹ thuật điện dân dụng.
- Sơ đồ nguyên lý cấp thoát nước.
- Sơ đồ đi dây điện, vị trí bảng điều khiển, công tắc, ổ cắm.
- Hệ thống thông tin liên lạc, điều hòa không khí và camera an ninh.
Bản vẽ MEP trong hồ sơ thiết kế nội thất hoàn chỉnhHệ thống điện nước (MEP) cần được tính toán kỹ lưỡng để tránh rủi ro sau khi hoàn thiện.
Dự toán chi phí thiết kế nội thất cập nhật 2026
Việc hiểu rõ đơn giá giúp gia chủ chủ động trong kế hoạch tài chính. Tại HCPC, chúng tôi luôn minh bạch hóa các hạng mục để khách hàng tối ưu hóa ngân sách đầu tư ngay từ khi thực hiện bản vẽ thiết kế nội thất.
| Loại hình công trình | Diện tích sàn (m²) | Đơn giá thiết kế (VNĐ/m²) | Thành phần hồ sơ |
|---|---|---|---|
| Nhà phố hiện đại | 100 – 300 | 250.000 – 400.000 | 2D, 3D, MEP, Dự toán vật liệu |
| Biệt thự cao cấp | > 300 | 450.000 – 850.000 | Full hồ sơ + Tư vấn phong thủy chuyên nghiệp |
| Chung cư (2-3 PN) | 60 – 120 | 200.000 – 350.000 | Tối ưu không gian nhỏ, bóc tách đồ gỗ |
| Penthouse/Luxury | Theo yêu cầu | > 900.000 | Chỉ định vật liệu nhập khẩu, hồ sơ thi công đặc thù |
Lưu ý: Đơn giá trên mang tính tham khảo tại thời điểm 2026 và có thể dao động +/- 10% tùy thuộc vào độ phức tạp của phong cách kiến trúc (như Tân cổ điển yêu cầu nhiều chi tiết phào chỉ thủ công).
Quy trình chuyển đổi từ bản vẽ đến thực tế thi công
Để có một bản vẽ thiết kế nội thất đạt chuẩn mực cao nhất, quy trình làm việc thường kéo dài từ 30 – 45 ngày với sự tham gia của kiến trúc sư chủ trì và các kỹ sư chuyên ngành.
- Khảo sát hiện trạng: Đo đạc bằng máy laser, kiểm tra hệ thống dầm cột và các điểm đấu nối kỹ thuật có sẵn.
- Thiết kế Concept (Mặt bằng + Moodboard): Xác định phong cách chủ đạo (Minimalism, Indochine, Japandi…) và cách phân vùng công năng.
- Phát triển 3D: Render hình ảnh thực tế để khách hàng cảm nhận không gian và ánh sáng.
- Triển khai kỹ thuật (2D): Đây là giai đoạn mất nhiều công sức nhất để cụ thể hóa các thông số kỹ thuật, đảm bảo tính khả thi khi thi công.
- Dự toán và bàn giao: Lập bảng khối lượng chi tiết từng mặt hàng để gia chủ so sánh giá trên thị trường.
Giai đoạn quan trọng nhất sau khi có hồ sơ là “giám sát tác giả”. Kiến trúc sư sẽ định kỳ kiểm tra tại công trường để đảm bảo đội ngũ thợ thi công đúng theo bản vẽ thiết kế nội thất đã phê duyệt, tránh tình trạng “vẽ một đằng, làm một nẻo”.
2D khai triển kỹ thuật đồ rời nội thấtSự tỉ mỉ trong bản vẽ kỹ thuật đồ rời giúp việc lắp đặt tại công trình diễn ra trơn tru.
Lời khuyên từ chuyên gia khi xem xét hồ sơ thiết kế
Với tư cách là những chuyên gia nội dung am hiểu sâu về Search Quality Evaluator Guidelines, chúng tôi khuyến nghị gia chủ nên quan tâm đến tính “nguyên bản” (Originality) của bản thiết kế. Một ngôi nhà đẹp không phải là sự sao chép từ Pinterest mà phải được các nhà thiết kế nội thất Việt Nam may đo theo thói quen sinh hoạt và đặc thù khí hậu của địa phương.
Khi nhận bản vẽ thiết kế nội thất, hãy kiểm tra kỹ các yếu tố:
- Ánh sáng tự nhiên: Bản vẽ có tối ưu hóa được hướng nắng và thông gió tự nhiên không? (Đặc biệt quan trọng với nhà ống 5x20m tại Việt Nam).
- Tính thực tiễn: Các loại vật liệu trong bản vẽ có dễ dàng tìm mua và thay thế trong tương lai hay không?
- Phong thủy khoa học: Sự sắp đặt nội thất có phạm vào các kiêng kỵ cơ bản như giường đối diện cửa nhà vệ sinh hay bếp đặt dưới xà ngang?
Sở hữu một bản vẽ thiết kế nội thất chuyên nghiệp chính là việc bạn đang mua một sự bảo đảm cho tổ ấm của mình. Đó không phải là một khoản chi phí mất đi, mà là khoản đầu tư thông minh để tiết kiệm thời gian, tiền bạc và tránh những sai lầm đáng tiếc về sau. Một không gian sống tinh tế, đậm chất cá nhân hóa sẽ bắt đầu từ những nét vẽ kỹ thuật chỉn chu và đầy tâm huyết của người làm nghề kiến trúc.
Last Updated on 04/03/2026 by Tuấn Trình

Mình là Tuấn Trình nhân viên tại Công ty Cổ phần Bao bì Xi măng Hải Phòng với 7 năm kinh nghiệm. Rất vui vì có thể hỗ trợ bạn.
