Trong kỹ thuật hạ tầng năm 2026, các loại dầm bê tông cốt thép đóng vai trò là xương sống chịu lực cho mọi công trình từ dân dụng đến cầu đường quy mô lớn. Việc hiểu rõ đặc tính kỹ thuật của dầm chữ I, dầm chữ U hay dầm dự ứng lực giúp kỹ sư tối ưu hóa khả năng vượt nhịp và tiết kiệm chi phí vật tư. Bài viết này phân tích sâu về thông số kỹ thuật, tiêu chuẩn TCVN và ứng dụng thực tiễn của các hệ dầm tiên tiến nhất.
Hình 1: Lắp dựng các loại dầm bê tông cốt thép dự ứng lực tại công trường giao thông trọng điểm năm 2026.
1. Phân loại các loại dầm bê tông cốt thép theo đặc tính kỹ thuật
Để lựa chọn giải pháp kết cấu tối ưu, đơn vị thiết kế thường phân chia các loại dầm bê tông cốt thép dựa trên hình dáng hình học và công nghệ chế tạo. Mỗi loại dầm được tính toán để chịu nén và chịu kéo tại các vùng chịu lực khác nhau, đảm bảo độ võng và độ mở rộng vết nứt nằm trong giới hạn cho phép của TCVN 11823:2017.
1.1. Dầm bê tông cốt thép tiết diện chữ I (I-Beam)
Đây là loại dầm phổ biến nhất trong các công trình cầu nhịp trung bình và lớn. Thiết kế chữ I giúp tối ưu hóa trọng lượng bản thân bằng cách tập trung vật liệu ở hai cánh (vùng chịu nén và chịu kéo chính) và giảm bớt ở phần bụng dầm.
- Ưu điểm: Khả năng chịu mô-men uốn cực cao, dễ dàng lắp đặt vận chuyển.
- Ứng dụng: Cầu vượt sông, cầu vượt nút giao thông đô thị.
1.2. Dầm bê tông cốt thép tiết diện chữ U (U-Beam)
Dầm chữ U thường được ưu tiên cho các dự án đòi hỏi tính thẩm mỹ cao và yêu cầu chiều cao kiến trúc thấp. Với cấu tạo hai sườn đứng, dầm U có độ cứng xoắn lớn vượt trội so với dầm I.
- Đặc điểm: Thường là dầm dự ứng lực đúc sẵn, mặt dưới phẳng đẹp.
- Ứng dụng: Hệ thống đường sắt trên cao, cầu đường bộ trong thành phố.
1.3. Dầm hộp và dầm bản (Box Girders & Slab Beams)
Đối với các nhịp cầu cực lớn hoặc sàn nhà công nghiệp chịu tải nặng, dầm hộp cung cấp độ ổn định kết cấu cao nhất. Trong khi đó, dầm bản có chiều cao hạn chế, phù hợp cho các rãnh thoát nước hoặc cầu dân sinh nhịp ngắn.
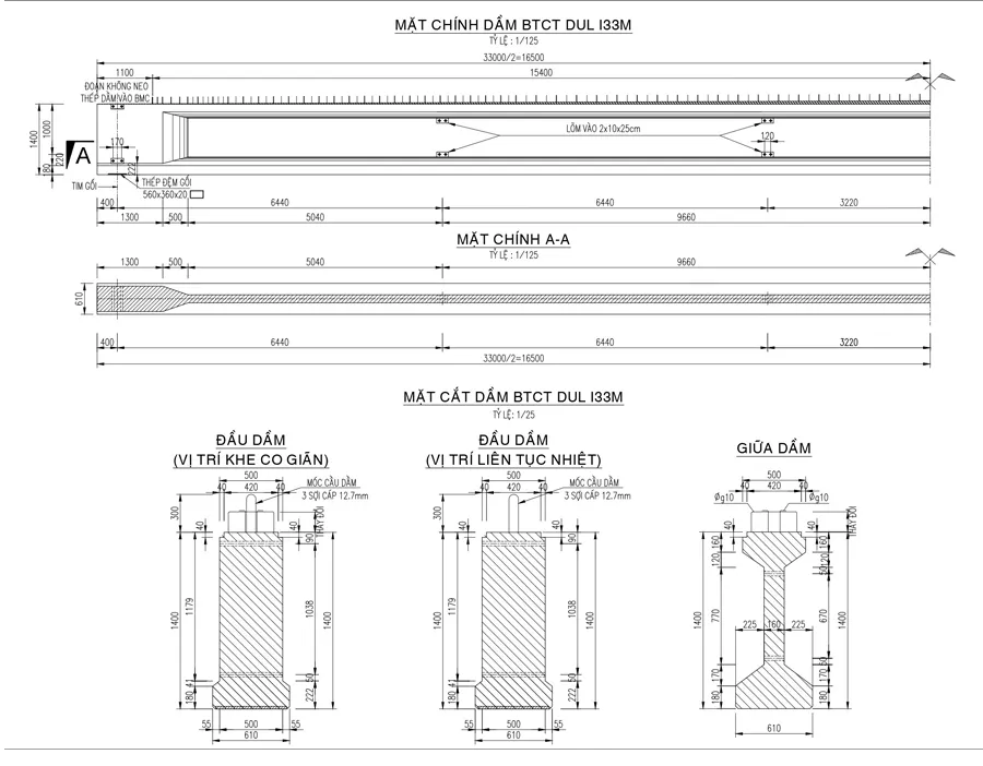
2. Thông số kỹ thuật chi tiết của dầm I33 dự ứng lực
Dầm I33 là một trong các loại dầm bê tông cốt thép điển hình nhất hiện nay, được thiết kế theo tiêu chuẩn AASHTO LRFD và TCVN 11823:2017. Đây là cấu kiện đúc sẵn tại nhà máy với quy trình kiểm soát chất lượng nghiêm ngặt về cường độ bê tông và lực căng cáp.
Hình 2: Bản vẽ kỹ thuật quy chuẩn dầm I33 dự ứng lực với chi tiết bố trí cáp thép và cốt thép đai.
Bảng thông số kỹ thuật chi tiết dầm I33:
| Thông số kỹ thuật | Giá trị tiêu chuẩn (Cập nhật 2026) | Ghi chú kỹ thuật |
|---|---|---|
| Tiêu chuẩn thiết kế | TCVN 11823:2017 | Tiêu chuẩn thiết kế cầu đường bộ |
| Tải trọng thiết kế | HL93 | Phù hợp xe tải thiết kế theo quy định |
| Mác bê tông dầm | 50 MPa (Mẫu hình trụ) | Tương đương mác M600 trở lên |
| Cáp dự ứng lực (DƯL) | Loại 7 tao, đường kính 12.7mm | Tiêu chuẩn ASTM A416 Grade 270 |
| Cốt thép thường | TCVN 1651:2018 | Thép thanh vằn cường độ cao |
| Lực căng cáp | 135,08 kN/tao | Kiểm soát bằng thiết bị thủy lực chuẩn |
| Lớp bê tông bảo vệ | Tối thiểu 25mm | Đảm bảo tính chống ăn mòn cốt thép |
| Cường độ cắt cáp | 45 MPa | Đạt tối thiểu 85-90% cường độ thiết kế |
| Độ võng sau cắt cáp | 63.08 mm | Tính toán theo điều kiện độ vồng ngược |
Cảnh báo kỹ thuật: Việc sản xuất các loại dầm bê tông cốt thép dự ứng lực cường độ cao yêu cầu loại xi măng có tốc độ phát triển cường độ sớm nhanh (như PCB40 hoặc xi măng cường độ cao chuyên dụng) để rút ngắn thời gian quay vòng ván khuôn và đảm bảo lực bám dính giữa bê tông và cáp thép.
3. Tìm hiểu về dầm I24.54 và các biến thể nhịp ngắn
Không chỉ các dòng dầm lớn, dòng dầm I24.54 cũng thuộc nhóm các loại dầm bê tông cốt thép được sử dụng rộng rãi nhờ sự linh hoạt trong phân khúc nhịp từ 20m đến 25m.
Hình 3: Cấu kiện dầm I24.54 đúc sẵn tại bãi đúc, sẵn sàng cho công tác cẩu lắp vào vị trí mố trụ.
Dầm I24.54 sở hữu tiết diện chữ I được tối ưu hóa độ mảnh, giúp giảm áp lực lên hệ thống mố trụ cầu. Kỹ thuật sản xuất dầm này sử dụng công nghệ đẩy căng trước trên bệ đúc dài, cho phép sản xuất hàng loạt với sai số kích thước dưới 5mm. Đối với các kỹ sư hiện trường, việc kiểm soát độ sụt bê tông (slump) và tỷ lệ Nước/Xi măng (W/C) là yếu tố sống còn để tránh hiện tượng rỗ bề mặt dầm.
4. Giải pháp dầm U cho hệ cầu dẫn và năng lượng tái tạo
Trong các dự án điện gió và hạ tầng biển, các loại dầm bê tông cốt thép chữ U chứng minh ưu thế vượt trội về khả năng vận chuyển và tốc độ lắp ghép.
Hình 4: Giải pháp dầm U đúc sẵn cho hệ thống cầu dẫn tại các dự án điện gió ven biển.
Giải pháp dầm U của các đơn vị đầu ngành như Phan Vũ Group không chỉ đơn thuần là cấu kiện chịu lực mà còn tích hợp các máng kỹ thuật bên trong lòng dầm. Việc sử dụng dầm U giúp:
- Rút ngắn 50% tiến độ thi công so với dầm đổ tại chỗ.
- Giảm 30% chi phí đầu tư tổng thể nhờ giảm số lượng mố trụ (do dầm U có khả năng vượt nhịp và độ cứng xoắn tốt hơn).
- Tăng tuổi thọ công trình trong môi trường xâm thực mặn nhờ lớp bê tông bảo vệ được đúc trong điều kiện kiểm soát nhà máy tuyệt đối.
5. Vai trò của vật liệu trong sản xuất các loại dầm bê tông cốt thép
Chất lượng của các loại dầm bê tông cốt thép phụ thuộc 70% vào chất lượng vật liệu đầu vào. Tại khu vực Hải Phòng và hạ tầng miền Bắc, việc lựa chọn xi măng và cốt thép phải tuân thủ nghiêm ngặt các bộ tiêu chuẩn quốc gia.
- Xi măng: Thường sử dụng xi măng Portland hỗn hợp PCB40 hoặc PC40/PC50 đáp ứng TCVN 6260:2020. Xi măng phải có độ mịn cao, hàm lượng C3S lớn để đạt cường độ sớm khi cắt cáp (thường yêu cầu 45MPa sau 3-7 ngày).
- Cốt thép: Cốt thép thanh vằn theo TCVN 1651:2018 (như CB400-V, CB500-V) đảm bảo tính dẻo và khả năng chịu lực cắt.
- Hóa chất phụ gia: Sử dụng phụ gia siêu dẻo giảm nước để đạt được bê tông tự đầm (SCC) hoặc bê tông độ sụt cực thấp nhưng vẫn đảm bảo độ đặc chắc, không bị phân tầng.
6. Công nghệ xử lý nền móng hỗ trợ hệ dầm
Để lắp đặt các loại dầm bê tông cốt thép tải trọng lớn, hệ thống nền móng phải cực kỳ vững chắc. Các công nghệ bổ trợ như cọc xi măng đất (CDM) trở thành lựa chọn hàng đầu cho các đoạn đường dẫn vào cầu.
Hình 5: Thi công cọc xi măng đất (CDM) để gia cố nền đất yếu, đảm bảo tính ổn định cho mố cầu bảo sườn dầm.
Cọc CDM (Cement Deep Mixing) tạo ra sự liên kết giữa đất lún và xi măng, tạo thành một khối vững chắc. Điều này đặc biệt quan trọng khi lắp đặt các loại dầm I33 hay dầm hộp có trọng lượng bản thân rất lớn, tránh hiện tượng lún không đều gây nứt gãy liên kết dầm-gối.
7. Quy trình kiểm định và nghiệm thu dầm năm 2026
Năm 2026, quy trình kiểm soát chất lượng các loại dầm bê tông cốt thép được số hóa hoàn toàn thông qua công nghệ BIM và cảm biến nhúng. Các bước nghiệm thu bắt buộc bao gồm:
- Kiểm tra cường độ nén (Nondestructive testing – NDT): Sử dụng súng bật nẩy và siêu âm để xác định độ đồng nhất của bê tông mà không cần khoan mẫu.
- Thử tải tĩnh dầm: Lắp đặt các kích thủy lực và cảm biến đo độ võng để kiểm tra thực tế khả năng chịu tải so với tính toán lý thuyết.
- Kiểm soát vết nứt: Các vết nứt do co ngót nhiệt hoặc thủy hóa không được phép vượt quá 0.2mm (theo điều kiện môi trường bình thường).
Đối với các đơn vị vận tải và lắp dựng, việc xác định đúng vị trí các móc cẩu và điểm kê điểm tựa trên xe rơ-moóc là cực kỳ quan trọng. Sai lệch vị trí kê dầm dự ứng lực có thể làm thay đổi biểu đồ mô-men, dẫn đến nứt mặt trên dầm ngay trước khi vào vị trí lắp đặt.
8. Những lưu ý khi lựa chọn đơn vị cung cấp dầm bê tông cốt thép
Khi chọn mua hoặc đặt hàng sản xuất các loại dầm bê tông cốt thép, chủ đầu tư và nhà thầu cần xem xét các tiêu chí sau để đảm bảo an toàn YMYL (Your Money Your Life – An toàn công trình):
- Năng lực thiết bị: Nhà máy phải có bệ đúc dự ứng lực dài, hệ thống trạm trộn bê tông trung tâm kiểm soát bằng máy tính.
- Chứng chỉ chất lượng: Đầy đủ chứng chỉ xuất xưởng cốt thép, chứng chỉ thử nghiệm mẫu bê tông 7 ngày và 28 ngày.
- Kinh nghiệm sản xuất: Đã từng cung cấp các hệ dầm tương tự cho các dự án của Bộ Giao thông vận tải.
Kết luận lại, các loại dầm bê tông cốt thép không chỉ là những khối bê tông vô hồn, mà là kết quả của các công thức tính toán vật lý chính xác và công nghệ vật liệu hiện đại. Từ dầm I33 tiêu chuẩn đến dầm U sáng tạo cho điện gió, mỗi cấu kiện đều góp phần tạo nên sự bền vững cho huyết mạch giao thông quốc gia 2026.
Để nhận được tư vấn kỹ thuật chuyên sâu và báo giá tối ưu nhất cho các loại dầm bê tông cốt thép phù hợp với yêu cầu thực tế của công trình, quý khách hàng nên liên hệ trực tiếp với các đơn vị sản xuất uy tín như Phan Vũ hoặc các đối tác hạ tầng hàng đầu để được hỗ trợ qua Hotline: (+84.28) 222.00.884/885/886. Sự kết hợp giữa vật liệu chuẩn TCVN và quy trình đúc sẵn chuyên nghiệp sẽ là chìa khóa cho sự an toàn bền vững của mọi dự án.
Last Updated on 01/03/2026 by Tuấn Trình

Mình là Tuấn Trình nhân viên tại Công ty Cổ phần Bao bì Xi măng Hải Phòng với 7 năm kinh nghiệm. Rất vui vì có thể hỗ trợ bạn.
