Xây nhà 2 tầng 300 triệu ở nông thôn là mục tiêu hoàn toàn khả thi khi bạn nắm rõ cách phân bổ ngân sách hợp lý và lựa chọn phương án thi công phù hợp. Với mặt bằng chi phí thấp hơn thành phố, nguồn vật liệu sẵn có và nhân công giá rẻ, bạn có thể sở hữu ngôi nhà đẹp, tiện nghi mà không phải vay nợ quá nhiều.
Tại nông thôn, chi phí nhân công thấp hơn 30-40% so với thành phố, vật liệu như gạch nung, cát, đá dễ tìm với giá tốt, và bạn có thể tự làm một số công đoạn đơn giản để tiết kiệm thêm. Bài viết này sẽ hướng dẫn chi tiết cách phân bổ 300 triệu, thiết kế công năng tối ưu và gợi ý các mẫu nhà phù hợp nhất cho vùng nông thôn năm 2026.
Xây nhà 2 tầng 300 triệu ở nông thôn giá rẻ đẹp bất ngờ 2026
Tại Sao 300 Triệu Đủ Xây Nhà 2 Tầng Ở Nông Thôn
Xây nhà 2 tầng 300 triệu ở nông thôn khả thi nhờ 5 yếu tố: nhân công rẻ hơn 30-40%, vật liệu sẵn có giá tốt, thiết kế đơn giản dễ thi công, tự làm được nhiều việc và tận dụng vật liệu cũ. Sau đây là phân tích cụ thể từng yếu tố.
Tại nông thôn, mức lương thợ xây dao động 300.000-400.000 đồng/ngày, thấp hơn đáng kể so với 500.000-700.000 đồng/ngày ở thành phố. Với công trình 2 tầng diện tích 60-80m², bạn tiết kiệm được 20-30 triệu chỉ riêng chi phí nhân công.
Nguồn vật liệu xây dựng như gạch nung, cát, đá thường có sẵn tại địa phương hoặc các tỉnh lân cận, giúp giảm chi phí vận chuyển. Gạch nung tại nông thôn có giá khoảng 1.500-1.800 đồng/viên, rẻ hơn 20-30% so với thành phố. Xi măng PCB40 giá khoảng 1.600.000-1.700.000 đồng/tấn, cát xây 180.000-220.000 đồng/m³.
Thiết kế nhà 2 tầng nông thôn thường đơn giản, vuông vắc, ít chi tiết phức tạp. Điều này giúp giảm khối lượng công việc, rút ngắn thời gian thi công từ 4-6 tháng, tiết kiệm chi phí quản lý và giám sát công trình.
Chủ nhà có thể tự thực hiện các công việc như trộn vữa, sơn tường, lát gạch hoặc vệ sinh công trình. Những việc này tuy nhỏ nhưng giúp tiết kiệm 10-15 triệu đồng. Ngoài ra, việc tái sử dụng cửa gỗ, khung sắt, gạch cũ từ công trình cũ hoặc tận dụng đồ có sẵn trong gia đình cũng góp phần giảm chi phí đáng kể.
Mẫu nhà 300 triệu giá rẻ bất ngờ
Phân Bổ Chi Phí Xây Nhà 2 Tầng 300 Triệu
Chi phí xây nhà 2 tầng 300 triệu ở nông thôn cần phân bổ hợp lý: xây thô và nhân công 180 triệu (60%), sơn nước 15 triệu (5%), thiết bị vệ sinh và điện nước 25 triệu (8.3%), cầu thang và cửa 15 triệu (5%), đá granite 10 triệu (3.3%), dự phòng 5 triệu (1.7%). Dưới đây là chi tiết từng hạng mục.
Xây thô bao gồm móng, tường, sàn, mái, cột dầm với chi phí vật liệu và nhân công khoảng 180 triệu. Với diện tích xây dựng 60-80m², bạn cần khoảng 15.000-20.000 viên gạch (27-36 triệu), 8-10 tấn xi măng (13-17 triệu), 15-20m³ cát (2.7-4.4 triệu), 20-25m³ đá (4-5 triệu), thép xây dựng 1-1.5 tấn (15-22 triệu). Chi phí nhân công xây thô chiếm khoảng 80-100 triệu.
Sơn nước bao gồm sơn lót, sơn phủ ngoại thất và nội thất. Với diện tích tường khoảng 200-250m², bạn cần 40-50 lít sơn (8-10 triệu) và nhân công sơn khoảng 5 triệu. Nên chọn sơn chống thấm, chống bám bẩn để tăng độ bền cho tường.
Thiết bị vệ sinh gồm bồn cầu, lavabo, vòi sen, bồn rửa bát với tổng chi phí khoảng 10-12 triệu. Hệ thống điện nước bao gồm dây điện, ổ cắm, công tắc, đèn, ống nước, van khóa với chi phí khoảng 13-15 triệu. Ưu tiên thiết bị tiết kiệm điện nước để giảm chi phí vận hành lâu dài.
Cầu thang bê tông cốt thép hoặc sắt kính có chi phí 8-10 triệu. Cửa chính gỗ công nghiệp hoặc sắt giá 3-4 triệu, cửa phụ nhôm kính hoặc gỗ giá 2-3 triệu/cánh. Đá granite lát nền tầng trệt diện tích 30-40m² có chi phí khoảng 10 triệu, giúp tăng tính thẩm mỹ và dễ vệ sinh.
Chi phí phát sinh 5 triệu dùng để xử lý các tình huống bất ngờ như thay đổi thiết kế nhỏ, mua thêm vật liệu hoặc sửa chữa lỗi thi công.
Chi phí xây dựng nhà 2 tầng 300 triệu
Bố Trí Công Năng Nhà 2 Tầng Tối Ưu
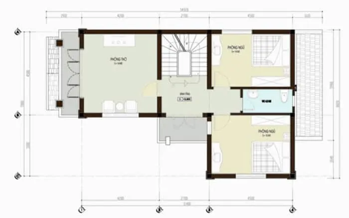
Bố trí công năng xây nhà 2 tầng 300 triệu ở nông thôn cần tối ưu diện tích: tầng 1 gồm phòng khách, bếp, 1 phòng ngủ, nhà vệ sinh và sân; tầng 2 gồm 2 phòng ngủ, nhà vệ sinh và phòng thờ. Cách bố trí này phù hợp với gia đình 4-6 người, đảm bảo đủ không gian sinh hoạt mà không lãng phí.
Tầng 1 là không gian sinh hoạt chung, cần bố trí phòng khách rộng 15-20m² để tiếp khách và sinh hoạt gia đình. Phòng bếp 8-12m² nên đặt gần cửa sau để dễ thoát khói và mùi, tham khảo thêm xây nhà bếp ở nông thôn để có thiết kế tối ưu. Phòng ngủ tầng 1 diện tích 10-12m² phù hợp cho người lớn tuổi hoặc khách qua đêm. Nhà vệ sinh chung 3-4m² đặt ở vị trí thuận tiện, dễ tiếp cận từ phòng khách và phòng ngủ.
Sân trước hoặc sân sau diện tích 10-15m² dùng để phơi đồ, trồng cây hoặc để xe. Nếu diện tích đất hạn chế, có thể bỏ sân sau và mở rộng phòng bếp hoặc phòng khách.
Tầng 2 là không gian riêng tư, bố trí 2 phòng ngủ mỗi phòng 10-12m² cho con cái hoặc vợ chồng. Nhà vệ sinh tầng 2 diện tích 3-4m² giúp giảm tải cho nhà vệ sinh tầng 1. Phòng thờ 6-8m² đặt ở vị trí trang trọng, hướng tốt theo phong thủy.
Tùy vào nhu cầu, bạn có thể điều chỉnh số lượng phòng ngủ, bổ sung phòng kho hoặc làm nhà vệ sinh khép kín trong từng phòng ngủ nếu ngân sách cho phép. Nếu có thêm nguồn lực, tham khảo xây nhà 2 tầng 600 triệu để nâng cấp tiện nghi và chất lượng hoàn thiện.
Mặt bằng công năng tầng 2
5 Kinh Nghiệm Xây Nhà Tiết Kiệm Hiệu Quả
Để xây nhà 2 tầng 300 triệu ở nông thôn thành công, cần áp dụng 5 kinh nghiệm: lập kế hoạch chi tiết, thiết kế đơn giản, xác định đúng diện tích, chọn vật liệu hợp lý và tận dụng nhân công có sẵn. Sau đây là hướng dẫn cụ thể từng bước.
Lập kế hoạch chi tiết bao gồm xác định rõ diện tích xây dựng, số phòng, công năng sử dụng và phong cách thiết kế. Lập bảng dự toán cụ thể từng khoản chi: vật liệu, nhân công, nội thất, chi phí phát sinh. Dự trù thêm 5-10% ngân sách để xử lý tình huống bất ngờ.
Thiết kế đơn giản, vuông vắc, hạn chế chi tiết phức tạp giúp giảm chi phí vật liệu và thời gian thi công. Tránh thiết kế mái phức tạp, ban công quá rộng hoặc cầu thang xoắn tốn kém. Ưu tiên phong cách tối giản, hiện đại với đường nét rõ ràng.
Xác định đúng diện tích xây dựng dựa trên nhu cầu thực tế của gia đình. Với gia đình 4-6 người, diện tích 60-80m² là hợp lý. Xây quá rộng sẽ tốn kém, xây quá hẹp sẽ thiếu không gian sinh hoạt.
Chọn vật liệu xây dựng giá rẻ nhưng đảm bảo chất lượng. Gạch nung truyền thống rẻ hơn gạch block nhưng vẫn đủ độ bền. Xi măng PCB40 phù hợp cho công trình dân dụng, rẻ hơn PCB50. Cát, đá mua tại địa phương để giảm chi phí vận chuyển.
Tận dụng nhân công có sẵn bằng cách tự làm các công việc đơn giản như trộn vữa, sơn tường, vệ sinh công trình hoặc nhờ người thân giúp đỡ. Thuê thợ chuyên nghiệp cho các công việc kỹ thuật như đổ móng, đan thép, đổ bê tông.
Kinh nghiệm xây dựng nhà 2 tầng 300 triệu cần nắm rõ
Gợi Ý Mẫu Nhà 2 Tầng Đẹp Giá 300 Triệu
Nhà Mái Chéo Năng Động Sáng Tạo
Mẫu nhà mái chéo phù hợp với người yêu thích sự năng động và sáng tạo, với thiết kế mái nghiêng độc đáo tạo điểm nhấn ấn tượng. Toàn bộ cửa làm bằng kính giúp tăng cường không gian mở, tạo cảm giác rộng rãi và thoáng đáng.
Mái chéo không chỉ mang tính thẩm mỹ cao mà còn giúp thoát nước mưa nhanh, giảm nguy cơ thấm dột. Cửa kính lớn đón ánh sáng tự nhiên, tiết kiệm điện chiếu sáng ban ngày. Chi phí xây dựng mẫu này khoảng 280-300 triệu tùy vào chất lượng kính và vật liệu mái.
Mẫu thiết kế 2 tầng giá 300 triệu mái chéo độc đáo sáng tạo
Nhà Mái Bằng Đơn Giản Tinh Tế
Mẫu nhà mái bằng thiết kế đơn giản, tối giản hóa chi tiết phức tạp, giúp tiết kiệm chi phí thi công. Gam màu trắng chủ đạo mang lại vẻ đẹp sang trọng và tinh tế. Tầng trệt lát gạch vân gỗ sóng tăng tính thẩm mỹ và khả năng chống trơn.
Mái bằng dễ thi công, giảm chi phí kết cấu so với mái dốc. Tuy nhiên, cần chú ý hệ thống thoát nước và chống thấm để tránh đọng nước trên mái. Chi phí xây dựng mẫu này khoảng 270-290 triệu.
Mẫu nhà 2 tầng giá nông thôn mái bằng đẹp
Nhà Mái Thái Sang Trọng Quý Phái
Mẫu nhà mái Thái với độ dốc cao giúp thoát nước nhanh, giảm tình trạng đọng nước và mang lại vẻ đẹp cuốn hút. Tầng 2 có ban công rộng, phù hợp cho người thích ngắm cảnh hoặc tận hưởng không khí trong lành.
Mái Thái phù hợp với khí hậu nhiệt đới, mưa nhiều ở nông thôn Việt Nam. Ban công tầng 2 có thể dùng để phơi đồ, trồng cây hoặc thư giãn. Chi phí xây dựng mẫu này khoảng 290-310 triệu do kết cấu mái phức tạp hơn.
Phong cách thiết kế mái Thái sang trọng và quý phái
Nhà Hiện Đại Cửa Kính Rộng Rãi
Mẫu nhà có hình khối vững chắc, hệ thống cửa sổ làm bằng kính giúp ánh sáng dễ dàng lọt vào nhà. Bên ngoài sơn màu vàng nhạt nổi bật, tạo điểm nhấn cho kiến trúc. Thiết kế tối giản giúp tiết kiệm chi phí xây dựng.
Cửa kính lớn không chỉ đẹp mà còn giúp thông gió tự nhiên, giảm nhu cầu sử dụng quạt và điều hòa. Màu vàng nhạt phản chiếu nhiệt tốt, giữ nhà mát hơn vào mùa hè. Chi phí xây dựng mẫu này khoảng 280-300 triệu.
Mẫu nhà 2 tầng đơn giản đón ánh nắng vào nhà
Nhà Tân Cổ Điển Ấm Áp Gần Gũi
Mẫu nhà kết hợp yếu tố cổ điển và hiện đại, mặt tiền ốp đá nổi tăng vẻ đẹp sang trọng. Mái chữ A xếp chồng kết hợp với 2 cột lớn ở tầng 2 tạo nét độc đáo nhưng vẫn giữ được sự trang nhã.
Phong cách tân cổ điển phù hợp với người yêu thích nét truyền thống nhưng vẫn muốn có không gian hiện đại. Đá ốp mặt tiền tăng độ bền, chống bám bẩn và dễ vệ sinh. Chi phí xây dựng mẫu này khoảng 295-315 triệu do chi phí đá ốp và cột trang trí.
Phong cách tân cổ điển đẹp nổi bật
Nhà Có Sân Vườn Xanh Mát
Mẫu nhà 2 tầng có sân vườn phù hợp với người yêu thiên nhiên. Thiết kế tổng thể đơn giản nhưng hiện đại, đầy đủ tiện nghi. Xung quanh nhà trồng nhiều cây xanh mang lại không khí trong lành và thư giãn.
Sân vườn không chỉ đẹp mà còn giúp điều hòa nhiệt độ, tạo bóng mát tự nhiên. Có thể trồng rau sạch, cây ăn quả để tự cung tự cấp. Chi phí xây dựng mẫu này khoảng 270-290 triệu, tiết kiệm hơn do không cần trang trí mặt tiền phức tạp.
Mẫu nhà 2 tầng sân vườn cực kỳ mát mẻ và thông thoáng
Xây nhà 2 tầng 300 triệu ở nông thôn hoàn toàn khả thi khi bạn lập kế hoạch chi tiết, thiết kế hợp lý và biết cách tận dụng nguồn lực sẵn có. Tham khảo thêm xây nhà 2 tầng giá 300 triệu để có cái nhìn toàn diện hơn về các phương án thiết kế và phân bổ ngân sách. Hãy liên hệ đơn vị thi công uy tín để được tư vấn và báo giá cụ thể.
Last Updated on 16/03/2026 by Tuấn Trình

Mình là Tuấn Trình nhân viên tại Công ty Cổ phần Bao bì Xi măng Hải Phòng với 7 năm kinh nghiệm. Rất vui vì có thể hỗ trợ bạn.
